Takaisin kohdelistaukseen

Apajantie 24, Satava, Turku

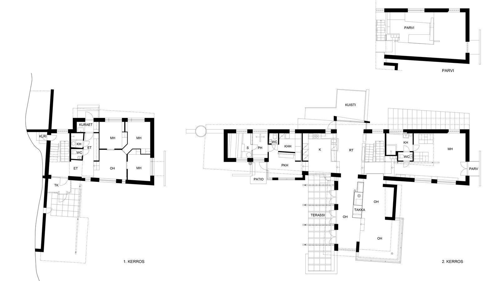
545 000 € • 4mh, k, rt, 2oh, 3kph, s, 3wc, khh, aula, parvi • 214 m² / 228 m² • 1992

Mia Kantonen mia.kantonen@strand.fi +358 400 934 113 Strand Properties Brand Partner,
Kiinteistönvälittäjä LKV, KTM, SKVL Laatuauktorisoitu
Mia Kantonen LKV Oy | 3470969-1

Haluatko lisätietoja?

Ota yhteyttä, tai jätä yhteystietosi.

Jätä yhteydenottopyyntö

Arkkitehdin suunnittelema uniikki koti luonnon keskellä Satavassa

Satavan vehreässä ympäristössä kohoaa ainutlaatuinen koti, jossa arkkitehdin kädenjälki näkyy jokaisessa yksityiskohdassa. Rakennus mukailee maastoa ja avautuu kauniisti ympäröivään metsään. Tilajärjestelyt on suunniteltu luovasti huolehtien, että kulku sisä- ja ulkotilojen välillä on sujuvaa. Tilat nivoutuvat yhteen saumattomasti muodostaen kokonaisuuden, joka tekee siitä yhtä aikaa toimivan ja elämyksellisen.

Alakerrassa kolme makuuhuonetta ryhmittyy pienen olohuoneen ympärille, kun taas yläkerran päämakuuhuone on suuri, korkea ja seesteinen tila. Molemmissa kerroksissa makuuhuoneiden yhteydessä on omat wc- ja pesutilat. Lasitiilillä kehystetty portaikko johdattaa olohuoneeseen, jonka keskipisteenä on näyttävä takka. Tila kylpee valossa aamusta iltaan, ja ikkunoista avautuu maisemataulu, joka muuttuu vuodenaikojen mukana. Kolmet pariovet johtavat olohuoneesta yläpihan patiolle, jossa kaunis luonnontilaan jätetty piha sulautuu luontevasti osaksi oleskelutiloja.

Yläkerran pesutilojen yläpuolella sijaitseva parvi tarjoaa rauhallisen paikan työskentelyyn. Ruokailutilaan mahtuu suurikokoinen pöytä, ja sieltä avautuu kulku aamiaisterassille, jossa päivän saa aloittaa aamuauringosta nauttien. Keittiöstä puolestaan on suora yhteys yläpihan patiolle, joka kutsuu ruokailemaan ilta-auringon valaistessa pitkiä kesä-iltoja. Tunnelmallinen sauna ja sen lauteiden huolellinen muotoilu takaa rentouttavat hetket päivän päätteeksi.

Kahden auton katoksen ja puolilämpimän varaston yhteydessä sijaitseva kasvihuone tarjoaa mahdollisuuden upottaa kädet multaan ja kasvattaa hyötykasvillisuutta. Lyhyen kävelymatkan päässä odottaa venevalkamaoikeus, jonka laiturilta voi pulahtaa uimaan vaikka ympäri vuoden. Arkea helpottavat sujuvat yhteydet kouluihin ja palveluihin, ja lähin linja-autopysäkki on vain reilun 200 metrin päässä.

Tässä on koti joka tulee itse kokea. Varaathan oman esittelyaikasi.

Mia Kantonen
Kiinteistönvälittäjä LKV, KTM
0400 934 113
mia.kantonen@strand.fi

Näytä kokonaan

Kohteen perustiedot

  • Kohdenumero 20708475
  • Sijainti Apajantie 24, 20960 Turku
  • Huoneistoselitelmä 4mh, k, rt, 2oh, 3kph, s, 3wc, khh, aula, parvi
  • Huoneita 5 h
  • Tyyppi Omakotitalo (kiinteistö)
  • Asuintilojen pinta-ala 214 m²
  • Pinta-alojen lisätiedot Huoneistoala 214 m2, parvi 14m2. Piharakennuksen huoneistoala 36m2. (puolilämmin ja kylmä varasto ja kasvihuone), lisäksi autokatos ja puukatos. Pinta-alat perustuvat piirustuksiin, ei tarkistusmitattu.
  • Kerroksia 2
  • Vapautuminen sopimuksen mukaan tai viim. 3kk kaupanteosta
  • Kohteen kunto Hyvä
  • Energialuokka E2018.
  • Asbestikartoitus Ei
  • Rakennusvuosi 1992
  • Käyttöönottovuosi 1992

Hinta ja kustannukset

  • Velaton hinta 545 000 €
  • Myyntihinta 545 000 €
  • Velkaosuus -
  • Vuokrattu Ei

Asuinkustannukset

  • Muut maksut Asumis ja- hoitokustannukset nykyisellä asukkaalla: Sähkönkulutus keskimääräin 30 000Kwh/v. Umpisäiliön tyhjennys noin 4krt/v, á 230€. Vesi n 280€/v. Jäte n. 180€/v. Tiemaksu n. 170€/v. Kiinteistövero n. 1000€/v.

Lisätiedot

  • Lämmitysmuodot puu, sähkö, Ilmalämpöpumppu
  • Oma sauna Kyllä
  • Antennijärjestelmä Antenni
  • Kuntotarkistus tehty Kyllä
  • Tehdyt remontit Olohuoneen laajennusosa valmistunut 1999. Sauna ja pesutila valmistunut 2010. Ilmalämpöpumppujen asennus 2022.
  • Rannan (vesistön) tyyppi Meri
  • Tie perille Kyllä

Tilat, materiaalit ja varustelu

  • Viemäri saostuskaivo, umpisäiliö
  • Säilytystilojen kuvaus Talousrakennuksessa sekä lämmin-, että kylmä varastotila, kasvihuone, kahden auton autokatos ja puukatos.
  • Muu varustelu lämminvesivaraaja, ilmalämpöpumppu
  • Tulisija muu
  • Vesihuolto kunnan
  • Kate Konesaumattu pelti
  • Käytetyt rakennusmateriaalit muu, betoni
  • Muut rakennusmateriaalit kevytbetoni (Siporex) puu
  • Keittiön varustelu Avonaisessa keittiössä lattia kumimattoa, seinät maalattu, välitila laattaa ja taso puuta. Integroidut kodinkoneet: jääkaappi ja pakastin, astianpesukone, keraaminen liesi sähkö/kaasu, liesituuletin.
  • Kylpyhuoneen kuvaus Molemmissa kerroksissa pesutilat makuuhuoneiden yhteydessä. Seinät ja lattiat laattaa, kiinteä valaistus, kaapisto, peilikaappi ja lattialämmitys. Yläkerran pesuhuoneessa kuivauspatteri. Saunan yhteydessä pesutilat jossa kaksi suihkua, seinät ja lattia laattaa ja lattialämmitys. Sauna ja sen pesutilat valmistuneet 2010.
  • Saunan kuvaus Lattiat laattaa, seinät osin laattaa ja pääosin puuta. Muotoillut lauteet puuta. Puukiuas.
  • Makuuhuoneen kuvaus Alakerrassa kolme lähes samankokoista makuuhuonetta, jossa normaalia korkeampi huonekorkeus, ikkunasta metsäiset maisemat ja lisävaloa tuo seinän yläosan lasi. Yläkerran päämakuuhuone on avara, korkea ja valoisa. Oma tuuletusparveke, sekä suuret ikkunat metsämaisemin. Vieressä vaatekaapit/pukeutumistila, kirjahyllyt ja käynti pesutiloihin, sekä wc:hen.
  • Makuuhuoneiden määrä 4
  • WC-tilojen kuvaus Saunaosaston vieressä erillinen wc, makuuhuoneiden yhteydessä ylä- ja alakerrassa erillinen wc. Lattialämmitys, bidee, allas ja peili.

Tontti

  • Lisätietoja rakennusoikeudesta 400m2 + 150m2. Rakennuspaikalle, joka ei sijaitse rantavyöhykkeellä, saa rakentaa yhden enintään kaksiasuntoisen asuinrakennuksen, jonka kerrosala saa olla enintään 400 k-m², sekä lisäksi talousrakennuksia enintään 150 k-m².
  • Tontin nimi Pehtorila
  • Koko 5 000 m²
  • Omistus Oma
  • Kaavoitustilanne Yleiskaava
  • Kiinteistötunnus 853-479-1-139
  • Rasitteet Rasite: Tieoikeus (000-2023-K5896, oikeutettu 853-479-1-175).
  • Rakennukset Puolilämmin varasto, kasvihuone., autokatos, puuliiteri
  • Ranta oikeus vesialueisiin, rantaoikeus

Yrityksen tiedot

  • Yrityksen nimi Strand Properties | Mia Kantonen LKV
  • Toimiston nimi Strand Turku
  • Osoite Aurakatu 1, Turku