Takaisin kohdelistaukseen

Jakarinkatu 3, Tarmola/ Kaupunginosa 5, Porvoo

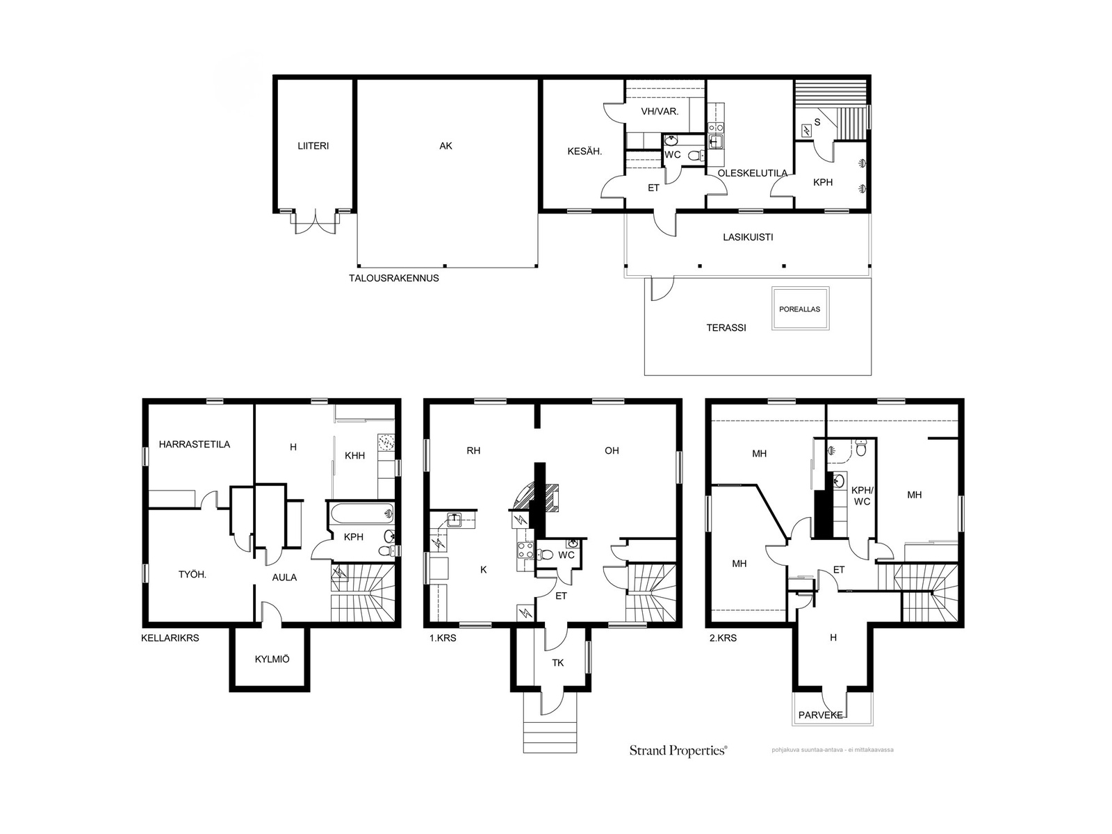
590 000 € • 1.krs: Oh, k, rt, wc, et, tk 2.krs: 4 h, kph, aula Kellarikerros: Työh, h, khh, kph, harrastetila, aula • 203 m² • 1926

Nina Simosas nina.simosas@strand.fi +358 50 341 2704 Strand Properties Brand Partner,
Kiinteistönvälittäjä LKV, LVV
Nina Simosas LKV | 3166645-4

Haluatko lisätietoja?

Ota yhteyttä, tai jätä yhteystietosi.

Jätä yhteydenottopyyntö

Idyllinen mansardikattoinen koti loistavalla sijainnilla

Vuonna 1926 valmistunut ja hyvin pidetty puolitoistakerroksinen omakotitalo tarjoaa satavuotista charmia ja toimivaa arkea Porvoon Tarmolan rauhallisella ja arvostetulla asuinalueella.
Kodin sisääntulokerroksessa sijaitsevat keittiö, erillinen ruokailutila ja tilava olohuone. Olohuoneessa on kaunis, varaava kaakeliuuni, joka tuo lämpöä ja tunnelmaa talvi-iltoihin. Yläkerrasta löytyvät makuuhuoneet, kylpyhuone sekä parveke pihanäkymillä. Kellarikerros tuo arkeen joustavuutta kodinhoitotilojen ja monikäyttöisten huoneiden ansiosta – ne sopivat niin työskentelyyn, harrastuksiin kuin vieraillekin.
Sisäänajo omalle tontille tapahtuu Jakarinkadulta luonnonkivisten porttipylväiden ja rautaportin kautta. Suojaisa ja aidattu piha tarjoaa yksityisyyttä ja turvallisen ympäristön perheen yhteisille hetkille. Pihapiirin erillinen talousrakennus on oma rentoutumisen keitaansa: siellä on sauna, pesuhuone, wc, oleskelutila sekä lasikuisti ja terassi porealtaineen. Täydellinen paikka rentoutua ympäri vuoden. Talousrakennuksen yhteydessä on myös autokatos kahdelle autolle.

Tarmola on erinomainen asuinalue lapsiperheille. Päiväkodit ja koulut ovat kävelyetäisyydellä, ja Porvoon keskustan palvelut sekä Vanhan Porvoon kahvilat ja jokimaisemat ovat lähellä.

Liikenneyhteydet ovat sujuvat: bussipysäkki on noin 150 metrin päässä ja moottoritieliittymään ajaa muutamassa minuutissa.
Tämä kokonaisuus tarjoaa laadukkaat puitteet perhe-elämään, etätyöhön ja vieraiden kestitsemiseen viihtyisässä ympäristössä.

Tervetuloa tutustumaan varaamalla oman esittelyaikanne.

Nina Simosas
Kiinteistönvälittäjä, LKV
Nina Simosas LKV / Strand Properties Brand Partner
050 341 2704 – nina.simosas@strand.fi

Näytä kokonaan

Kohteen perustiedot

  • Kohdenumero 20310444
  • Sijainti Jakarinkatu 3, 06100 Porvoo
  • Huoneistoselitelmä 1.krs: Oh, k, rt, wc, et, tk 2.krs: 4 h, kph, aula Kellarikerros: Työh, h, khh, kph, harrastetila, aula
  • Huoneita 6 h ja enemmän
  • Tyyppi Omakotitalo (kiinteistö)
  • Asuintilojen pinta-ala 203 m²
  • Pinta-alojen lisätiedot Asuinrakennus on puolitoistakerroksinen kellarikerroksella. Asuinrakennuksen pinta-alat on tarkistusmitattu SFS standardin 5139 ja RT12-10277 mukaan. Asuinrakennuksen kerrosala on noin 153 m2, huoneistoala noin 133 m2 ja kellarin ala noin 70 m2. Kellarin kokonaisala on noin 87 m2. Rakennuksen kokonaisala on noin 240 m2. Asuinkäytössä oleviin tiloihin (tilan korkeus yli 160 cm) on laskettu: 1. kerroksessa olevat tilat: Oh, k, rt, erill. wc, et, tk. 2. kerroksessa olevat tilat: 4 h, kph, et. Kellarikerroksen tilat: Harraste-,työ- ja huonetilat, khh, kph, aula. Huonejako ei vastaa täysin lupa-piirustuksia. Talousrakennuksen kerrosala on hyväksytyn rakennuslupapiirroksen mukaan noin 75 m2 ja siinä asuinkäytössä on noin 47 m2, joka käsittää tupahuoneen, pesuhuoneen saunan, vaate-/varastohuoneen, wc:n ja eteisen. Myytävä kiinteistö on rakennusten ja maapohjan kokonaisuus, eikä myytävän kohteen hinta perustu annettuihin pinta-aloihin.
  • Kerroksia 1.5
  • Vapautuminen sopimuksen mukaan
  • Kunto Asuntoportaaleissa ilmoitettu kuntoluokitus on subjektiivinen näkemys vain asunnon pintojen kunnosta, eikä sitä tule sekoittaa rakennusalan ammattilaisten tekemään kuntotutkimukseen, -tarkastukseen tai -arvioon.
  • Kohteen kunto Tyydyttävä
  • Energialuokka D2018. Lisätietoja energialuokasta: Voimassa 25.10.2035
  • Rakennusvuosi 1926
  • Käyttöönottovuosi 1926

Hinta ja kustannukset

  • Velaton hinta 590 000 €
  • Myyntihinta 590 000 €
  • Velkaosuus -
  • Vuokrattu Ei
  • Kiinteistövero 493,68

Asuinkustannukset

  • Muut maksut Nykyisen omistajan yhdistetty käyttö- ja lämmityssähkön vuosikulutusarvio on ollut keskimäärin noin 30 000 kWh. Esitetyt asumiskustannukset perustuvat nykykäyttöön ja voivat siten olla suurempia tai pienempiä riippuen asukasmäärästä, asumistottumuksista sekä palveluntarjoajasta. Puhtaanapito: Uudenmaan jätelautakunnan jätemaksut voimassa 1.2.2026 alkaen. Jätehuollon perusmaksu 3,46 €/kk (sis. alv) Sekajäteastian tyhjennys: 8,27 € (sis. alv. / tyhjennys (jäteastia yli 140 l, enintään 240 l) + jäteastiavuokra 240 l, 0,79 €/astia/kk sis. alv. Biojätteen lajitteluvelvollisuus, jos ei itse kompostoi. Kustannukset biojäteastian tyhjentämisestä 6,55 € sis. alv/tyhjennys, jäteastia enintään 140 l. Vesi- ja viemärivesimaksut: Porvoon veden hinnaston mukaan, voimassa 1.1.2026 alkaen: Perusmaksu 30,39 €/kk sis. alv (yksi mittari). Vesi 2,45 €/m3 sis. alv, Viemäri 3,46 €/m3 sis. alv. Nuohous 1 krt/vuodessa: arvio kustannuksesta noin 100 €. Nettipalvelut palvelutarjoajan hinnaston mukaan. Kotivakuutus henkilökohtaisten sopimusehtojen mukaan. Kiinteistövero vuoden 2026. Ostaja vastaa sähköisen kaupan kuluista, rekisteröinneistä/lainhuuto- ja kiinnitysrekisteriin merkitsemisestä sekä sähköisten panttikirjojen siirrosta. Varainsiirtovero 3 % kauppahinnasta.

Lisätiedot

  • Pihan kuvaus Sisäänajo tontille tapahtuu rauhalliselta Jakarinkadun puolelta, luonnonkivisten porttipylväiden ja kauniin rautaportin kautta. Tontti on suojaisa ja rauhallinen, kokonaan aidattu. Pihapiirissä on nurmialueita, kukkapenkkejä sekä koriste- ja hedelmäpuita. Luonnonkivistä tehty kulkureitti johtaa talon länsipuolelle, josta on portti kadulle. Pihapiirissä huvimaja ja talousrakennuksen yhteydessä iso terassi.
  • Lämmitysmuodot sähkö, Ilmalämpöpumppu
  • Oma sauna Kyllä
  • Sähköliittymä siirtyy Kyllä
  • Antennijärjestelmä Kaapeli-tv
  • Kuntotarkistus tehty Kyllä
  • Tehdyt remontit Peruskorjaus 1980-luvulla ja 2. kerroksen huonejaon muutostyöt 2000-luvulla.
  • Päiväkoti Suomen- ja ruotsinkielistä varhaiskasvatusta 1-5 vuotiaille Huhtisten päiväkoti (n. 1,6 km, uusi päiväkoti, jonka toiminta alkoi elokuussa 2025) Yksityinen ruotsinkielinen Lekskolan Regnbågen, småbarnspedagogik för 2-6 åringar (n. 1,6 km)
  • Koulu Suomenkielinen alakoulu: Keskuskoulu (n. 1 km Google Maps) Ruotsinkielinen alakoulu: Kvarnbackens skola (n. 0,5 km Google Maps) Suomen- ja ruotsinkieliset yläkoulut ja lukiot Porvoon keskustassa (n. 1 km)
  • Palvelut Tarmolan alueen palvelut mm K-Supermarket, Lidl,Tokmanni, Mikrokulma (n. 1 km) GOGO Express kuntosali (n. 1 km) Galgbackantien valaistu kuntopolku noin 1 km, Raakunapuisto (lähin leikkipuisto, n. 0,3 km) Porvoon kaupunginkirjasto, pääkirjasto (n. 0,5 km) Porvoon kaupungin liikuntahalli, urheilukenttä, uimahalli ja Joonaanmäen ulkoilualue (noin 1 km) Muut palvelut Porvoon keskustassa, johon etäisyys n. 1 km
  • Muut palvelut Porvoon keskustasta noin 1 km idän suuntaan, Werner Söderströmin kadun itäisellä puolella, osana Tarmolan asuinaluetta sijaitsee myynnissä oleva kohde. Itäinen osa Tarmolasta kuuluu Porvoon kaupunkiosaan 5. Alue tunnetaan rauhallisena asuinympäristönä, jossa on erinomaiset puitteet mm lapsiperheille. Kävelyetäisyydellä sekä suomen- että ruotsinkieliset päiväkodit ja koulut. Tarmolassa on monenlaisia asuntotyyppejä, aina eri aikakautena rakennetuista omakotitaloista rivi- ja kerrostaloihin, joten alue houkuttelee eri-ikäisiä asukkaita. Lähietäisyydellä on kaupalliset palvelut, mikä tekee arjesta sujuvaa. Luonto on lähellä, ja Tarmolan ympäristössä onuseita puistoja ja ulkoilualueita, jotka tarjoavat mahdollisuuksia ulkoiluun ja liikuntaan. Etäisyys Porvoon moottoritieliittymään noin 2,5 km.
  • Liikenneyhteydet Paikallisliikenteen bussipysäkki noin 0,2 km (linja 2) Porvoon moottoritielle n. 2,5 km, josta sujuvasti omalla autolla pääkaupunkiseudulle tai Kotka/Kouvolan suuntaan.

Tilat, materiaalit ja varustelu

  • Viemäri kunnan
  • Säilytystilojen kuvaus Säliytystiloja: Kellarissa, yläkerran ullakkolaipioissa, talousrakennuksen varastossa ja autokatoksen yläpuolisessa tilassa.
  • Muu varustelu sälekaihtimet/rullaverhot, verhotangot, naulakko, kiinteät valaisimet, lämminvesivaraaja, ilmalämpöpumppu
  • Tulisija takka
  • Vesihuolto kunnan
  • Kate Saumattu peltikate
  • Katon kunto Uusittu 2016, maalattu 2021
  • Rakennus- ja pintamateriaalien kuvaus Asuinrakennuksen ulkoseinä-rakenteet asuinkerrosten osalla puurakenteiset, hirsi- ja puurankarakenteiset. Kellarin osalla kiviainesrakenteiset. Julkisivupinnoite on paneeliverhous, joka on uusittu 2016.
  • Keittiön varustelu Keittiön varustus: Jääkaappi, pakastin, keraaminen liesi, liesikupu, astianpesukone, sähkö-toiminen lattialämmitys. Kaapistot: Saarni Työtasot: Kivi Lattia: Laatta Seinät: Maalatut Katto: Maalattu puupaneeli
  • Kylpyhuoneen kuvaus Yläkerran kylpyhuoneen varustus: Kaapistot, allas- ja allaskaappi, suihkukaappi, wc-istuin, sähkötoiminen lattialämmitys. Lattia: Laatta Seinät: Kaakeli Katto: Maalattu puupaneeli Kellarikerroksen kylpyhuoneen varustus: Pesuallas, peilikaappi, amme wc-istuin, sähkötoiminen lattialämmitys. Lattia: Laatta Seinät: Kaakeli Katto: Maalattu puupaneeli
  • Saunan kuvaus Sauna sijaitsee talousrakennuksessa. Sen yhteydessä kylpyhuone kahdella suihkulla, värivalosuihkupäällä. Sauna: Lattia: Laatta Seinät: Laatta ja puupaneelia Katto: Puupaneelia Kylpyhuone: Lattia: Laatta Seinät: Laatta Katto: Puupaneeli Sähkötoiminen lattialämmitys saunassa ja kylpyhuoneessa.
  • Makuuhuoneen kuvaus Yläkerrassa sijaitsee kolme makuuhuonetta, ja pienempi huone joka voi toimia esim. työhuoneena. Lattia: Laminaattia Seinät: Tapetti, maalatut Katto: Kattolevyt
  • Makuuhuoneiden määrä 3
  • WC-tilojen kuvaus 1. kerroksessa erillinen wc. WC:n varustus: Allas- ja allaskaappi, peilikaappi, kaksi pientä seinäkaappia, wc-istuin, bidee-suihku. Lattia: Laatta Seinät: Kaakeli Katto: Maalattu kattopaneeli

Tontti

  • Rakennusoikeus e-luku 0.25
  • Lisätietoja rakennusoikeudesta Rakennusoikeuden e-luku on: 0,25 + 0,10. Ensimmäinen luku ilmoittaa asuinrakennuksen tehokkusluvun ja toinen sen lisäksi sallitun talousrakennuksen tehokkuusluvun.
  • Koko 753 m²
  • Omistus Oma
  • Kaavoitustilanne Asemakaava
  • Kiinteistötunnus 638-5-142-3
  • Rakennukset Yksikerroksinen puurakenteinen talousrakennus, jonka kerrosala on 75 m2, valmistunut 2008. Talousrakennuksen yhtydessä kahden auton autokatos ja varasto. Talousrakennuksen lämmön lähteenä on suora sähkö ja ilmalämpöpumppu, lämmön jako sähkötoiminen lattialämmitys. Talousrakennus: Lasikuisti, kesähuone, vaatehuone/varasto, eteinen, wc, oleskelutila, minikeittiö (keittiökaapistot, tiskiallas, vesihana, liestitaso ja -tuuletin), kylpyhuone kahdella suihkulla, sauna sähkökiukaalla sekä terassi, jossa poreallas., autokatos, talousrakennus, varasto

Taloyhtiö

  • Kuntotutkimuksista Asuinrakennukseen on 19.10.2025 tehty Asuntokaupan kuntotarkastus KH 90-00394. Talousrakennukseen on 19.10.2025 tehty kuntokatselmus.

Yrityksen tiedot

  • Yrityksen nimi Strand Properties | Nina Simosas LKV
  • Toimiston nimi Strand Helsinki
  • Osoite Erottajankatu 19, Helsinki