Takaisin kohdelistaukseen

Ketarantie 29, Keskusta, Turku

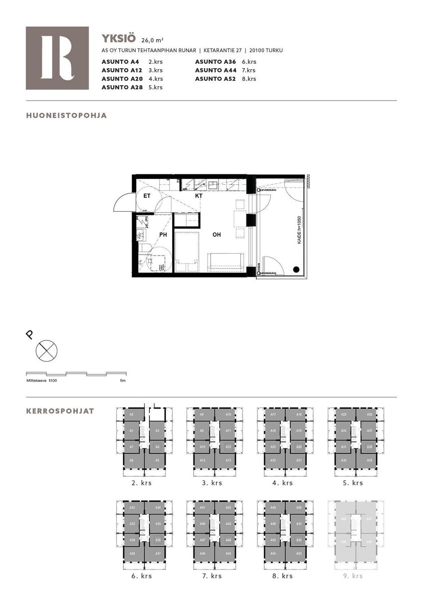
179 000 € • 1h, kt • 26 m² • 2024

Asta Lumento asta@strand.fi +358 45 229 3492 Strand Properties Brand Partner
Asta Lumento LKV Oy | 3465430-1

Haluatko lisätietoja?

Ota yhteyttä, tai jätä yhteystietosi.

Jätä yhteydenottopyyntö

Tunnelmallisen Verkatehtaan alueelle vuonna 2024 valmistunut As Oy Turun Tehtaanpihan Runar tarjoaa korkealaatuisia, hyvin suunniteltuja kaupunkikoteja aivan keskustan ja korkeakoulujen tuntumassa.

Omalle tontilleen, rauhallisen sisäpihan puolella 9-kerroksinen Runar on Sigge Arkkitehtien ja palkitun Pekka Mäen käsialaa ja arvostetun TKU rakennuksen rakentama. Tiiliverhoiltu talo istuu saumattomasti urbaaniin miljööseen tarjoten kaiken mitä nykyaikaiselta kaupunkiasumiselta vaaditaan.

Runarin korkealaatuiset kaksiot ja yksiöt tarjoavat täydellisen tukikohdan aktiivista elämää elävälle. Asuntojen laadukkaat materiaalit, viilennys kaukokylmällä sekä toimiva pohjaratkaisu huomioi arjen toiminnot. Moni arvostaa keittiön kestäviä kivitasoja ja lähes lattiasta kattoon ulottuvia ikkunoita tehden kodista valoisan. Suuri asunnon levyinen lasitettu parveke toimii kuin toisena olohuoneena tuoden kotiin runsaasti lisäneliöitä.

Alue sykkii urbaania elämää ja kehittyvää kaupunkikuvaa. Täällä asut vain kävelymatkan päässä korkeakouluista, TYKSistä ja Turun keskustan kattavista palveluista. Idyllinen Aurajokiranta kulttuuri- ja ravintolatarjontoineen ja elämää sykkivä Kauppatori ovat myös vain muutaman minuutin päässä.

Liikuitpa sitten julkisilla tai omalla autolla, toimivat liikenneyhteydet sekä sijainti lähellä linja-auto- ja rautatieasemaa sujuvoittavat arkea. Omalle autolle on mahdollisuus ostaa tai vuokrata autopaikka lämpimästä autohallista.

Tehtaanpihan Runar on täydellinen valinta opiskelijalle, sijoitukseen tai ensiasunnoksi - Lämpimästi tervetuloa tutustumaan!

Kaikki Tehtaanpihan Runarin myynnissä olevat asunnot:
https://fi.strandproperties.com/verkatehdas/

Lisätiedot ja myynti:
Asta Lumento
asta@strand.fi | 0452293492

Näytä kokonaan

Kohteen perustiedot

  • Kohdenumero 21622729
  • Sijainti Ketarantie 29, 20100 Turku
  • Omistusmuoto Oma
  • Huoneistoselitelmä 1h, kt
  • Huoneita Yksiö
  • Hallintamuoto Asunto-osakeyhtiö
  • Tyyppi Kerrostalo (osake)
  • Asuintilojen pinta-ala 26 m²
  • Kerros 4/9
  • Vapautuminen sopimuksen mukaan
  • Kohteen kunto Hyvä
  • Energialuokka B2018.
  • Rakennusvuosi 2024
  • Käyttöönottovuosi 2024

Hinta ja kustannukset

  • Velaton hinta 179 000 €
  • Myyntihinta 51 155,89 €
  • Velkaosuus 127 844,11 €
  • Vuokrattu Ei
  • Huoneiston yhtiövastike yht 704,50 € / kk
  • Rahoitusvastike 603,10 € / kk
  • Hoitovastike 101,40 € / kk
  • Lisätietoa vastikkeista Laajakaistavastike 1€/kk.

Asuinkustannukset

  • Muut maksut Kylmä vesi 3,61€/m3, lämmin vesi 9,05€/m3. Varainsiirtovero 1,5 % velattomasta kauppahinnasta. Myyjällä on kaupan kohteeseen kohdistuva sähköinen omistajamerkintä huoneistotietojärjestelmässä. Ostajan tulee hakea omistusoikeuden rekisteröintiä Maanmittauslaitokselta. Ostaja vastaa tällöin omistusoikeuden rekisteröintikustannuksista. Ostajan pankin ostajalta mahdollisesti veloittamista kaupantekoon, omistusoikeuden rekisteröintiin tai panttausmerkinnän hakemiseen liittyvistä kustannuksista ostaja saa tiedon pankiltaan.

Lisätiedot

  • Lämmitysmuodot kaukolämpö
  • Hissi Taloyhtiössä on hissi
  • Parveke Kyllä
  • Antennijärjestelmä Kaapeli-tv
  • Auton säilytys Yhtiön autopaikat sijaitsevat katutason autohallissa ja ne myydään erillisinä osakkeina.

Tilat, materiaalit ja varustelu

  • Muut säilytystilat kellarikomero
  • Kate Huopakate
  • Käytetyt rakennusmateriaalit betoni
  • Keittiön varustelu Induktioliesi, erillisuuni, jääkaappipakastin. Sisustuskonseptista riippuen työtasot kiveä tai kvartsikomposiittia, lattiat parkettia.
  • Kylpyhuoneen varustelu suihkuseinä, pesukoneliitäntä, wc-istuin, suihku, peili, kiinteät valaisimet, kylpyhuonekaapisto
  • Kylpyhuoneen lattia laatta
  • Kylpyhuoneen seinät kaakeli
  • Parveke lasitettu
  • Olohuoneen lattia parketti
  • Olohuoneen seinät maalattu

Tontti

  • Koko 487 m²
  • Omistus Oma
  • Kaavoitustilanne Asemakaava

Taloyhtiö

  • Nimi Asunto Oy Turun Tehtaanpihan Runar
  • Isännöitsijän tiedot Turun isännöintikeskus Oy Jarmo Tamminen, 02 6517 2180
  • Huolto Turun Kiinteistöässä Oy
  • Huoneistojen lukumäärä 59
  • Taloyhtiössä urheiluvälinevarasto, väestönsuoja, Huoneistokohtaiset varastot

Yrityksen tiedot

  • Yrityksen nimi Strand Properties | Asta Lumento LKV Oy
  • Toimiston nimi Strand Turku
  • Osoite Aurakatu 1, Turku