Takaisin kohdelistaukseen
Esittely 15.02.2026 klo 13.00 - 14.00

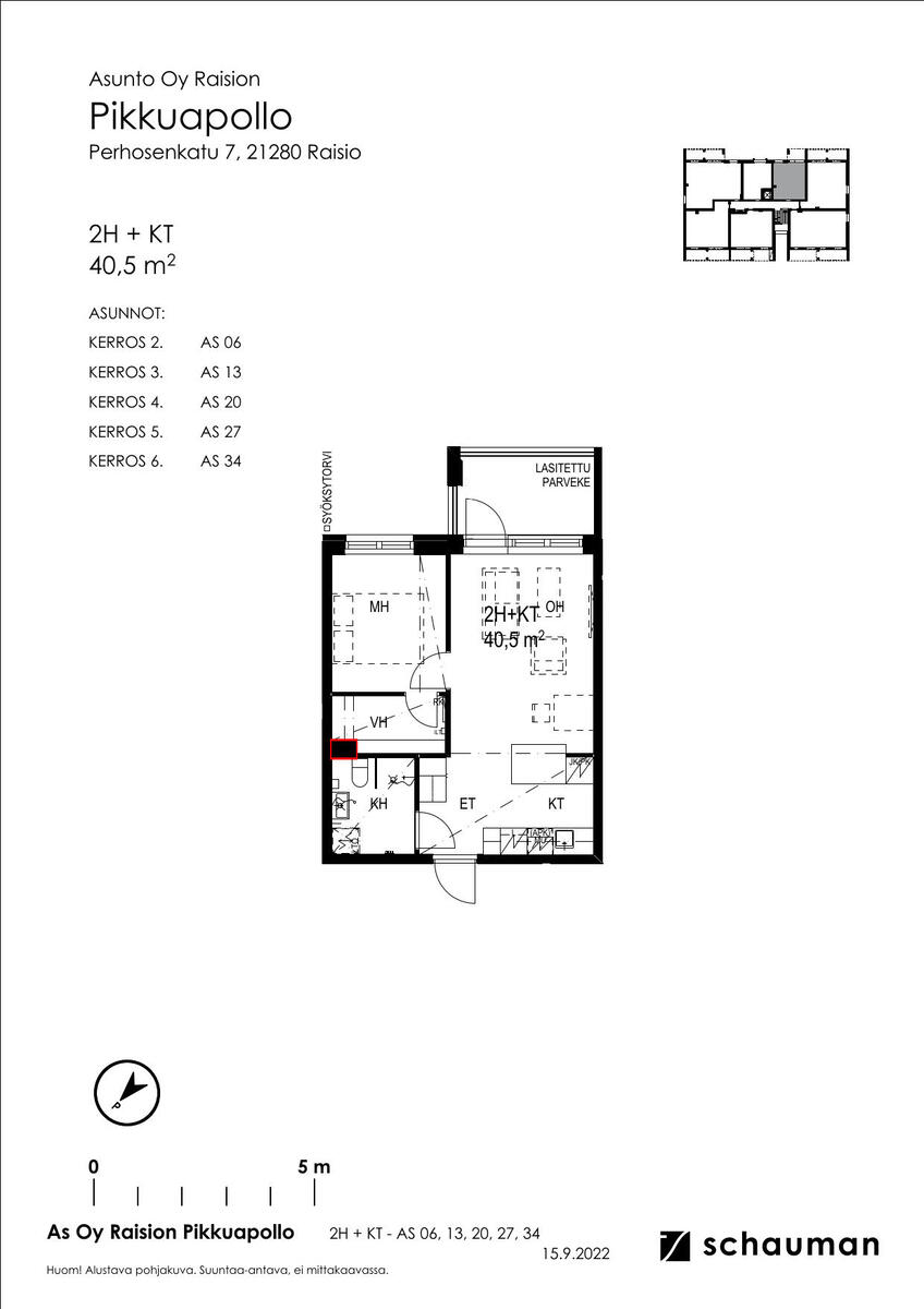
Perhosenkatu 7, Kuloistenniitty, Raisio

165 550 € • 2h, kt, kph, parveke • 40,50 m² • 2027

Alisa Taavila alisa@strand.fi +358 40 521 9977 Harry Lockmer LKV team member
Harry Lockmer LKV | 2498435-8

Haluatko lisätietoja?

Ota yhteyttä, tai jätä yhteystietosi.

Jätä yhteydenottopyyntö

Asunto Oy Raision Pikkuapollo – SRV Rakennus Oy:n tyylikäs uudiskohde nyt ennakkomarkkinoinnissa

Kuloistenniityn uusi asuinalue yhdistää erinomaisen sijainnin ja luonnonläheisen arjen. Asunto Oy Raision Pikkuapollo rakentuu aivan Turun ja Raision rajalle, missä molempien kaupunkien palvelut ovat käden ulottuvilla.

Kuusikerroksinen Asunto Oy Raision Pikkuapollo tarjoaa koteja, joissa modernit ratkaisut ja arjen toimivuus kulkevat käsi kädessä. Asunnoissa vesikiertoinen lattialämmitys ja huoneistokohtainen ilmanvaihto lisäävät asumismukavuutta, ja käytännöllisyyttä tuovat omat irtaimistovarastot sekä merkityt pyöräpaikat ulkoiluvälinevarastossa. Autokatospaikan voi halutessaan ostaa, ja siihen on mahdollista saada myös sähköauton latausvalmius. Yhtiön suojaisa ja viihtyisä sisäpiha viimeistelee kokonaisuuden.

Pikkuapollon avarat kaksiot on suunniteltu toimiva arki edellä. Avokeittiö yhdistyy oleskelutiloihin, tarjoten luontevan tilan yhteiselle ajalle. Oleskelutilojen jatkeena on lasitettu parveke, joka tuo lisäneliöitä asumiseen aina varhaisesta keväästä myöhäiseen syksyyn. Tilavan kylpyhuoneen lisäksi osassa asunnoista on oma sauna, sekä vaatehuone tuomassa lisää säilytystilaa.

Suvituulenpuisto kulkee koko Kuloistenniityn alueen läpi ja tuo vehreyden luontevaksi osaksi arkea. Puisto tarjoaa monipuolisia aktiviteetteja ja paikkoja ulkoiluun. Alue rajautuu suojeltuun Mälikkälänmetsään, jossa upeat ulkoilureitit jatkuvat pitkälle ympäristöön.

Arjen palvelut ovat helposti saavutettavissa. Kauppakeskus Mylly Raisiossa ja Turun Länsikeskus sijaitsevat molemmat lähellä, ja sekä Raision että Turun keskustaan on noin kymmenen minuutin ajomatka. Alueella on hyvät julkisen liikenteen yhteydet, ja lapsiperheiden arkea helpottaa aivan vieressä sijaitseva päiväkoti sekä useat koulut muutaman kilometrin säteellä.

Näytä kokonaan

Kohteen perustiedot

  • Kohdenumero 20606632
  • Sijainti Perhosenkatu 7, 21280 Raisio
  • Omistusmuoto Oma
  • Huoneistoselitelmä 2h, kt, kph, parveke
  • Huoneita Kaksio
  • Hallintamuoto Asunto-osakeyhtiö
  • Tyyppi Kerrostalo (uudiskohde, osake)
  • Asuintilojen pinta-ala 40,50 m²
  • Kerros 6/6
  • Vapautuminen sopimuksen mukaan
  • Kohteen kunto Uusi
  • Energialuokka Ei lain edellyttämää energiatodistusta
  • Rakennusvuosi 2027
  • Käyttöönottovuosi 2027

Hinta ja kustannukset

  • Velaton hinta 165 550 €
  • Myyntihinta 66 150 €
  • Velkaosuus 99 400 €
  • Vuokrattu Ei
  • Huoneiston yhtiövastike yht 838,48 € / kk
  • Rahoitusvastike 646,10 € / kk
  • Hoitovastike 192,38 € / kk
  • Lisätietoa vastikkeista Laajakaistavastike 2,2€/huoneisto/kk. Hoitovastike sisältää tontin vuokran. Pääomavastike on arvioitu käytämällä seuraavia tietoja: lainan pääoma 4 615 500,00€, kokonaiskorko 3,659 % (marginaali 1,5 +euribor 12kk 2,159 (22.9.2025)), kokonaislaina-aika 25 vuotta valmistumisesta ja lyhennysvapaata 1 vuosi yhtiön valmistumisesta lukien. Lainan lyhennykseen tarvittavaa pääomavastiketta kerätään puoli vuotta aikaisemmin kuin lyhennysvapaa loppuu, jotta tarvittavat varat ovat yhtiön tilillä, silloin kun ne on suoritettava pankille. Korkeampaa pääomavastiketta A aloitetaan perimään 6/2027-8/2027, riippuen yhtiön valmistumisesta. Pääomavastiketta A peritään vain niiltä huoneistoilta, joihin kohdistuu rakentamisaikana otettua yhtiölainaa. Pääomavastike arvioidaan uudelleen myynnin alkaessa.

Asuinkustannukset

  • Vesimaksu 25 € / kk oma mittari
  • Muut maksut Vesiennakko 25€/hlö/kk. Tasauslaskutus huoneistokohtaisen mittauksen perusteella.

Lisätiedot

  • Lämmitysmuodot kaukolämpö
  • Hissi Taloyhtiössä on hissi
  • Parveke Kyllä
  • Uudiskohteen tila ennakkomarkkinoinnissa
  • Auton säilytys Autopaikat myydään omina osakkeinaan

Tilat, materiaalit ja varustelu

  • Muut säilytystilat kellarikomero
  • Kate Bitumikermi
  • Käytetyt rakennusmateriaalit tiili, betoni
  • Keittiön varustelu Keittiön kalusteet valitun sisustuskonseptin mukaisia. Kodinkoneet AEG:n mallistosta: Jääkaappi/pakastin, integroitu astianpesukone, induktioliesi, erillisuuni, mikroaaltouuni. Lattia laminaattia.
  • Kylpyhuoneen kuvaus Kylpyhuoneen seinät ja lattia laatoitetaan valitun sisustuskonseptin mukaisesti. Seinät 300x600 laatalla, lattia 10x10 laatalla. Katto lämpökäsiteltyä haapaa tai vastaavaa. Sähköinen mukavuuslattialämmitys.
  • Kylpyhuoneen varustelu suihkuseinä, pesukoneliitäntä, lattialämmitys, wc-istuin, suihku, peilikaappi, kylpyhuonekaapisto
  • Kylpyhuoneen lattia laatta
  • Kylpyhuoneen seinät kaakeli
  • Makuuhuoneiden määrä 1
  • Makuuhuoneen lattia laminaatti
  • Makuuhuoneen seinät maalattu
  • Parveke lasitettu
  • Olohuoneen lattia laminaatti
  • Olohuoneen seinät maalattu

Tontti

  • Koko 1 960 m²
  • Omistus Vuokrattu
  • Maanvuokraaja Raision Kaupunki
  • Kaavoitustilanne Asemakaava
  • Maanvuokrasopimuksen saa Yhtiö hallitsee kiinteistöä 680-6-6083-4 Raision kaupungin kanssa 2.12.2024 allekirjoitetun maanvuokrasopimuksen perusteella. Tontin perusvuokra on 36 845,00 euroa ja se on ollut vuoden 2024 vuosivuokra. Perusindeksilukuna on vuoden 2023 elinkustannusindeksin keskiarvon indeksiluku 2296. Tontin 2025 vuosivuokra on 37 422,71€. Tontin vuokran määrittelyssä käytetään koko vuoden lopussa määräytyvä tammi-joulukuun elinkustannusindeksien keskiarvon indeksilukua. Tontin vuokra sisältyy hoitovastikkeeseen. Tonttivuokran osuus hoitovastikkeesta olisi vuonna 2028 n. 1,542 €/m2/kk. Tontin maanvuokran osuus on arvioitu siten, että vuoden 2025 maanvuokraan (37 422,71€) on lisätty Suomen Pankin 12.9.2025 antama kuluttajahintainflaation ennuste vuodelle 2025 1,8%, vuodelle 2026 1,3% ja vuodelle 2027 1,7%.

Taloyhtiö

  • Nimi Asunto Oy Raision Pikkuapollo
  • Taloyhtiön autopaikat Autokatospaikkoja: 28
  • Huoneistojen lukumäärä 38
  • Taloyhtiössä urheiluvälinevarasto, Huoneistokohtaiset varastot

Esittely

  • Esittelyaika 15.02. 13:00 - 14:00
  • Esittelijä Taavila Alisa
  • p. +358 40 521 9977
  • Sähköposti alisa@strand.fi
  • yleisesittely
  • Lisätietoja Tervetuloa Pikkuapollon esittelyyn! Esittelykontti sijaitsee osoitteessa Perhonsenkatu 1, Raisio.

Yrityksen tiedot

  • Yrityksen nimi Strand Properties | Harry Lockmer LKV
  • Toimiston nimi Strand Turku
  • Osoite Aurakatu 1, Turku