Takaisin kohdelistaukseen
Esittely 11.01.2026 klo 12.00 - 12.30

Lapinlahdenkatu 21, Kamppi, Helsinki

695 000 € • 3-4h, avok, kph/wc, erill. wc, halli, eteinen (yj. 4h +k) • 98,50 m² • 1928

Jenny Vento jenny@strand.fi +358 500 980 948 Strand Properties,
Kiinteistönvälittäjä LKV, LVV, BBA

Haluatko lisätietoja?

Ota yhteyttä, tai jätä yhteystietosi.

Jätä yhteydenottopyyntö

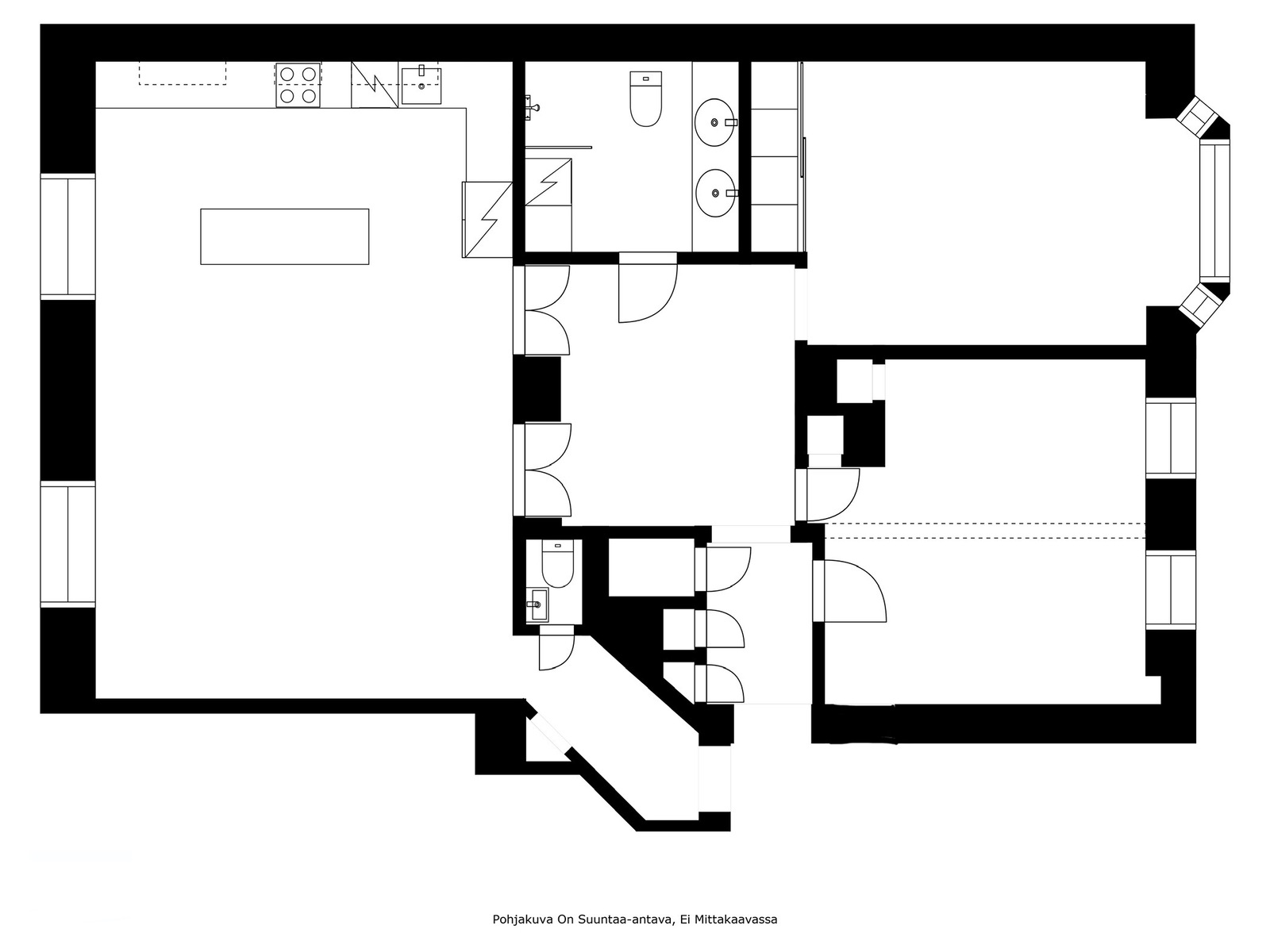
Valoisa ja avara läpitalon huoneisto huippusijainnilla

Tervetuloa ihastumaan tähän 5. kerroksen asuntoon, jonka sisustuksessa uusi ja vanha yhdistyvät luontevasti. Kaunis, tummaksi petsattu lautalattia, syvät ikkunalaudat ja alkuperäiset väliovet luovat kodikkaan tunnelman ja selkeälinjainen Puustellin avokeittiö saarekkeineen sekä olohuoneen tiilinen tehosteseinä tuovat tilaan modernia twistiä. Huoneisto on läpikäynyt mittavan remontin vuonna 2007-08, jolloin mm. keittiö siirrettiin olohuoneen yhteyteen ja kylpyhuonetta laajennettiin. Makuuhuoneet sijaitsevat rauhallisen sisäpihan puolella ja päämakuuhuoneeseen luo tunnelmaa kaunis erkkeri-ikkuna ja tilava, seinän levyinen liukuovikaapisto tarjoaa paljon säilytystilaa. Pienempi makuuhuoneista on palautettavissa kahdeksi erilliseksi huoneeksi väliseinällä - tilaan on jo valmiina kaksi oviaukkoa. Kylpyhuoneessa on kaksi pesuallasta ja runsaasti tilaa hoitaa aamuaskareita sekä pyykkihuoltoa. Avara halli ja erillinen wc tekee pohjasta toimivan. Kohde on heti vapaa, joten tänne pääset muuttamaan kaupoilta!

Asunto Oy Asta Bostads Ab on valmistunut 1928 ja sijaitsee omalla tontilla. Yhtiötä on hoidettu suunnitelmallisesti ja seuraavaksi on vuorossa viemäriremontti (tot. talvi 26-27). Asukkaiden käytössä on mm. tyylikkäät saunatilat ja pesutupa. Huoneistolle kuuluu irtainvarasto.

Tällä asut muutaman kadun kulman päässä Kampin ja keskustan kattavista palveluista ja Hietsun uimaranta ja ja vehreät lenkkipolut löytyvät lyhyen kävelymatkan päästä.

Esittelyt ja lisätiedot:
Jenny Vento
Kiinteistönvälittäjä LKV, BBA
Strand Properties Oy
0500 980 948 – jenny@strand.fi

Näytä kokonaan

Kohteen perustiedot

  • Kohdenumero 21166675
  • Sijainti Lapinlahdenkatu 21, 00180 Helsinki
  • Omistusmuoto Oma
  • Huoneistoselitelmä 3-4h, avok, kph/wc, erill. wc, halli, eteinen (yj. 4h +k)
  • Huoneita 4 h
  • Hallintamuoto Asunto-osakeyhtiö
  • Tyyppi Kerrostalo (osake)
  • Asuintilojen pinta-ala 98,50 m²
  • Pinta-alojen lisätiedot -Pinta-ala ei ole tarkistusmitattu ja todellinen pinta-ala voi olla suurempi tai pienempi, kuin ilmoitettu. -Edellä mainittu pinta-ala saattaa tämän ikäisessä kohteessa poiketa olennaisestikin huoneiston nykyisen ja rakentamisaikaisen mittaustapojen ja standardien mukaan laskettavasta pinta-alasta. Huoneiston todellinen pinta-ala voi siis olla yhtiöjärjestyksessä, isännöitsijäntodistuksessa ja esitteessä mainittua pienempi tai suurempi.
  • Kerros 5/6
  • Vapautuminen heti
  • Kunto Hyvä / tyydyttävä.
  • Kohteen kunto Hyvä
  • Energialuokka E2018. Lisätietoja energialuokasta: Energiatodistuksen voimassaoloaika: 27.02.2034
  • Rakennusvuosi 1928
  • Käyttöönottovuosi 1928

Hinta ja kustannukset

  • Velaton hinta 695 000 €
  • Myyntihinta 695 000 €
  • Velkaosuus -
  • Vuokrattu Ei
  • Huoneiston yhtiövastike yht 630,40 € / kk
  • Hoitovastike 630,40 € / kk

Asuinkustannukset

  • Saunamaksu 20 € / kk
  • Vesimaksu 32 € / kk henkilöluvun mukaan
  • Muut maksut Pyöräpaikka 5 €/kk

Lisätiedot

  • Lämmitysmuodot kaukolämpö
  • Hissi Taloyhtiössä on hissi
  • Antennijärjestelmä Kaapeli-tv
  • Tehdyt remontit **2007 koko asunto remontoitu, jolloin keittiö siirretty sisäpihan puolelta avohuoneeseen kadun puolelle ja kaksi kadunpuoleista huonetta yhdistetty yhdeksi isoksi avokeittiö-olohuone tilaksi **2025 kesällä lautalattiat, osa seinistä ja väliovista maalattu.
  • Luovutusrajoitukset Kyllä. Yhtiöllä on oikeus yhtiökokouksen päätöksellä osakepääomaa alentamatta tarjouksesta lunastaa omia osakkeita yhtiölle.
  • Auton säilytys Ei autopaikkoja
  • Päiväkoti Useita alueella
  • Koulu Ressun peruskoulu 100m
  • Palvelut Kauppa lähin 250m, postin piste 350m, koulu 100m, metro 300m, raitiovaunu 300m, päärautatieasema 800m
  • Liikenneyhteydet Metro 300m, raitiovaunu 300m, bussipysäkki 100m, päärautatieasema 800m

Tilat, materiaalit ja varustelu

  • Muu varustelu sälekaihtimet/rullaverhot, kiinteät valaisimet, pyykinpesukone
  • Kate Pelti
  • Käytetyt rakennusmateriaalit tiili
  • Keittiön varustelu Uusittu vuonna 2007 huoneistoremontin yhteydessä. Työtasot: massivipuu. Varusteet: keraaminen liesi, liesituuletin, mikroaaltouuni, astianpesukone ja side-by-side jääkaappipakastin, irrallinen saareke, kiinteät valaisimet
  • Keittiön lattia lauta
  • Keittiön seinät maalattu
  • Kylpyhuoneen kuvaus Kylpyhuone uusittu ja laajennettu vaatehuoneen puolelle huoneistoremontin yhteydessä 2007. Varusteet: suihku, suihkuseinä, wc-istuin, allaskaappi, 2 pesuallasta, pesukoneliitäntä, pesukone, peili, kylpyhuonekaapisto, kiinteät valaisimet, lattialämmitys ja bidee-suihku
  • Kylpyhuoneen lattia laatta
  • Kylpyhuoneen seinät kaakeli
  • Makuuhuoneen kuvaus Nykytilassa kaksi makuuhuonetta, mahdollista toteuttaa kolmas makuuhuone väliseinällä. Päämakuuhuoneessa erkkeri ja liukuovikaapisto.
  • Makuuhuoneiden määrä 2
  • Makuuhuoneen lattia lauta
  • Makuuhuoneen seinät maalattu
  • Olohuoneen lattia lauta
  • Olohuoneen seinät maalattu
  • WC-tilojen kuvaus Uusittu huoneistoremontin yhteydessä 2007 Varusteet: wc-istuin, pesuallas, bidee-suihku ja peilikaappi
  • WC-tilojen lattia laatta
  • WC-tilojen seinät kaakeli

Tontti

  • Koko 1 330 m²
  • Omistus Oma
  • Kaavoitustilanne Asemakaava
  • Kaavoitustiedot Kaupungin kaavoitustilanne: Lapinlahdenkatu 8 asemakaavamuutoksen tilanne. Hallituksen jäsen Kauko Keskihannu toimii kaavoituksen seurannan projektipäällikkönä. Yhtiö on tehnyt Helsingin hallinto oikeuteen valituksen (valituskirjelmän) Helsingin Kaupungin valtuuston 19.5.2021 tekemään päätökseen. Päätös koskee asemakaavan hyväksymistä Kamppi, Lapinlahdenkatu 8. (Kampp,tontti 164/6, piirustus nro 12658,Lapinlahdenkatu 8. nro HEL 2018-013050). Päätös mahdollistaa 7.kerroksisen kerrostalon rakentamista lapinlahdenkadulle. 1. Päätös halutaan muuttaa siten, että: uudisrakennuksen kerros korkeus ei ylitä Lapinlahden kadun aikaisemmin voimassa olleen kaavan mukaista kerros-korkeutta. 2. Kantakaupungille tavanomainen eheä räystäskorkeus säilytetään 3. Lapinlahdenkadun nykyinen eheä puustorivi säilytetään

Taloyhtiö

  • Nimi Asunto Oy Asta Bostads Ab
  • Taloyhtiössä sauna Kyllä
  • Isännöitsijän tiedot Isännöitsijätoimisto Fallenius Oy, Sanna Sillanpää, sanna.sillanpaa@fallenius.fi, puh. 050-388 3185
  • Huolto Pestone Yhtiöt Oy
  • Tehdyt remontit **2024 Putkiston kuntotutkimus, syöksytorven korjaus Lapinlahdenkadun 21-23 ja julkisivun rappauskorjaukset, sisäpihan seinän rappauskorjaus, lämminkiertovesiverkoston virtaamien säätötyö ja A- ja B-portaan vesijohtoverkoston linjaventtiilien uusiminen. **2023 Patteri-ja linjasäätöventtiilien uusiminen ja lämpöverkon perussäätö, rappujen ja liiketilojen ulko-ovien ja C-rapun ikkunoiden huoltomaalaus, palovaroitinjärjestelmän asennus yleisiin tiloihin, hissihälytyksen päivitys A- ja B-rapuissa GSM- pohjaiseksi sekä puheyhteyden asennus **2021 Ikkunasyvennysten peittäminen sisäpihalla, takapihan hiililuukut **2019 Kylpyhuonekartoitus, saunan uusiminen **2018 C-portaan edustan korjaus, vesivahinkokorjauksia C-portaassa ja siihen liittyviä veden ohjaukseen liittyvät korjaukset **2016 Jätekatoksen ovien kunnostusmaalaus, sisäpihan julkisivun paikkausrappaustyö, parvekkeiden pinnoitus, viemärien huuhtelu **2015 Kellaritilan rikkinäisten valaisimien uusiminen, palohälytinjärjestelmän korjaus kellaritiloihin, julkisivun kuntotutkimus, vesikaton kuntoselvitys, ilmanvaihtohormien puhdistus **2014 Ylläpitokorjauksia, kellarin lattian jyrsintä betonipinnalle, seinien rappauksen korjausta, pihan peltilaatikon korjaus, asfalttireunukset sisäpihalle, A ja B portaan ovien hionta/lakkaus **2013 Ullakkohuoneistojen parvekekaivojen sukitus, julkisivun paikkakorjaus **2011-12 Ikkunoiden huoltomaalaus **2010 Saunan rakentaminen **2009 Kuivaustilat uusittu, julkisivun pihanpuolen maalaus, hissit A ja B saneerattu, C rakennettu, pihan portti saneerattu, piha uusittu, kellarikomerot rakennettu, kaksi viemärilinjaa pinnoitettu, lämmönsiirrin uusittu, ullakkohankkeen oheistyöt **2008 Katto ja turvatuotteet uusittu **2004 Porraskäytävä **1989 Ikkunat uusittu, linjasaneeraus - vesijohdot ja viemärit pääosin kalusteineen **1988 Lämmönsiirrin, linja- ja patteriventtiilit, sähkönousut
  • Tulevat remontit Hallituksen kunnossapitotarveselvitys 2025-2030 **2025 Viemärisaneeraushanke käynnissä (infotilaisuus 16.10.2025 ja ylim. yk 3.11.2025), hulevedet viemärihankkeen yhteydessä, palovaroittimien asentaminen A ja B portaiden huoneistoihin, saunan kiukaan kellonajastuksen uusiminen, C-rapun poistumistikkaiden kunnostus, hiililuukkujen peittäminen. **2026 Vesikaton osittainen huoltomaalaus, turvalaitteiden määräaikaishuolto ja sadevesikourujen saattolämmityksen tarkastus, A- ja B-rapun porrashuoneiden sisäovien maalaus, vesi- ja viemärikalusteet (märkätilat KL1), IV-hormien nuohous **2027 Julkisivun kuntotutkimus, sisäpihan valonheittimen poisto **2028 Lukitusjärjestelmän uusiminen kellaritilojen osalta, vesi- ja viemärikalusteet (märkätilat KL2) **2029 IV-koneiden kuntotutkimus **2030 Vesi- ja viemärikalusteet (märkätilat KL3-KL5 kuntotutkimus), vesijohdot kuntotutkimus
  • Huoneistojen lukumäärä 57
  • Liikehuoneistojen lukumäärä 5
  • Taloyhtiössä sauna, talopesula, kuivaushuone, urheiluvälinevarasto
  • Taloyhtiössä muuta Ilmanvaihto: painovoimainen ilmanvaihtojärjestelmä

Esittely

  • Esittelyaika 11.01. 12:00 - 12:30
  • Esittelijä Vento Jenny
  • p. 0500 980 948
  • Sähköposti jenny@strand.fi
  • yleisesittely

Yrityksen tiedot

  • Yrityksen nimi Strand Properties Oy, Helsinki
  • Toimiston nimi Strand Helsinki
  • Osoite Erottajankatu 19, HELSINKI