Takaisin kohdelistaukseen

Klaavuntie 1, Puotila, Helsinki

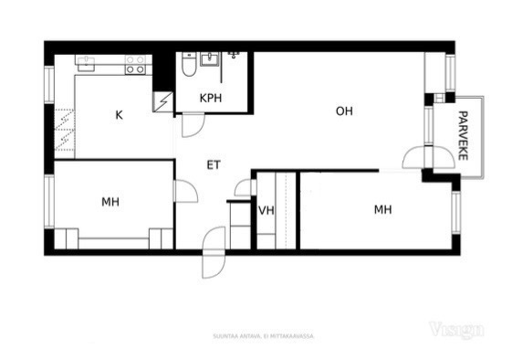
209 000 € • 3h+k+vh, kph, las.parveke (yj 3h+k) • 60 m² • 1961

Jenny Vento jenny@strand.fi +358 500 980 948 Strand Properties,
Kiinteistönvälittäjä LKV, LVV, BBA

Haluatko lisätietoja?

Ota yhteyttä, tai jätä yhteystietosi.

Jätä yhteydenottopyyntö

Kaunis ja tunnelmallinen ylimmän kerroksen kolmio taloyhtiössä jossa isot remontit tehty

Tervetuloa ihastumaan tähän avaraan ja valoisaan ylimmän kerroksen huoneistoon, joka on remontoitu vuonna 2013. Moderni, tumma keittiö on toimiva kokonaisuus ja sieltä löytyy mm. kaasuliesi sekä tyylikkäät mustat pyykin- ja astianpesukoneet. Aiemman osakkaan teettämässä remontissa keittiötä laajennettiin, joten nyt siellä on hyvin tilaa myös ruokapöydälle. Olohuone on tilava ja sen suurista ikkunoista tulvii valoa koko asuntoon. Hurmaava ikkunasyvennys leveällä ikkunalaudalla on sekä kaunis että käytännöllinen yksityiskohta. Asunnon lasitettuparveke avautuu taloyhtiön rauhalliselle ja vehreälle sisäpihalle. Olohuoneesta on käynti päämakuuhuoneeseen ja kauniit taiteovet tuovat tänne yksityisyyden. Asunnon toinen makuuhuone sijaitsee omassa rauhassa keittiön vieressä. Kauniissa kylpyhuone on puusepän valmistama allaskaluste ja tilava suihkunurkka. Säilytystilaa löytyy runsaasti reilun kokoisesta vaatehuoneesta.

Taloyhtiö on hyvin hoidettu ja mm. putki- ja kattoremontti ovat takanapäin ja viimeisimpänä on valmistumassa julkisivuremontti, joka on tämän asunnon kohdalla jo valmistunut. Urakan arvioitu kustannus huoneistolle tulee olemaan n. 38 000 euroa. Lämmitysmuotona on maalämpö. Yhtiöllä on vuokratuottoja vuosittain yli 60 000 euroa.

Puotila on idyllinen ja vehreä Vartiokylään kuuluva alue jossa viihdytään. Upeat ulkoilualueet ja -reitit merenrantoineen alkavat lähes kotioveltasi ja liikenneyhteydet ovat hyvät. Lähistöltä löytyy mm. uimaranta, viljelypalstat, ulkokuntosali, venesatama sekä tietenkin Puotilan kartano.

Kohdetta esitellään privaaattinäytöin, joten varaathan oman esittelyaikasi.

Esittelyt ja lisätiedot:
Jenny Vento
Kiinteistönvälittäjä LKV, BBA
Strand Properties Oy
0500 980 948 – jenny@strand.fi

Näytä kokonaan

Kohteen perustiedot

  • Kohdenumero 21354994
  • Sijainti Klaavuntie 1, 00910 Helsinki
  • Omistusmuoto Oma
  • Huoneistoselitelmä 3h+k+vh, kph, las.parveke (yj 3h+k)
  • Huoneita Kolmio
  • Hallintamuoto Asunto-osakeyhtiö
  • Tyyppi Kerrostalo (osake)
  • Asuintilojen pinta-ala 60 m²
  • Pinta-alojen lisätiedot Edellä mainittu pinta-ala saattaa tämän ikäisessä kohteessa poiketa olennaisestikin huoneiston nykyisen ja rakentamisaikaisen mittaustapojen ja standardien mukaan laskettavasta pinta-alasta. Huoneiston todellinen pinta-ala voi siis olla yhtiöjärjestyksessä, isännöitsijäntodistuksessa ja esitteessä mainittua pienempi tai suurempi.
  • Kerros 3/3
  • Vapautuminen 2-3 kk kaupanteosta
  • Kohteen kunto Hyvä
  • Energialuokka C2018. Lisätietoja energialuokasta: Energiatodistuksen voimassaoloaika: 10.02.2035
  • Rakennusvuosi 1961
  • Käyttöönottovuosi 1961

Hinta ja kustannukset

  • Velaton hinta 209 000 €
  • Myyntihinta 209 000 €
  • Velkaosuus -
  • Vuokrattu Ei
  • Huoneiston yhtiövastike yht 373,10 € / kk
  • Hoitovastike 373,10 € / kk
  • Yhtiövastike lyhennysvapaan jälkeen 373,10 € / kk
  • Lisätietoa vastikkeista Huoneiston jyvitetty pinta-ala on 57,4 m2, jonka mukaan määräytyy maksettava hoitovastike yhtiölle sekä osuudet yhtiön pitkäaikaisista lainoista.

Asuinkustannukset

  • Vesimaksu 25 € / kk henkilöluvun mukaan
  • Muut maksut Taloyhtiö on ylimääräisessä yhtiökokouksessa 27.3.2024 päättänyt antaa hallitukselle valtuudet tilata julkisivuremontti, joka sisältää rappauksen uusimisen, parvekkeiden betonirakenteiden uusimisen, parvekkeiden lasittamisen sekä ikkunoiden uusimisen. Hallitukselle on myönnetty valtuudet 3 500 000 euron rahoituksen nostamiseksi hankkeen rahoittamiseksi 25 vuoden laina ajalla. Hoitolaina on 1.9.2025 mennessä nostettu kokonaisuudessaan. Jyvitys huoneistokohtaisiksi lainaosuuksiksi tapahtuu urakan valmistuttua. Arvio myynnissä olevalle huoneistolle on n. 38 000 euroa budjetin toteutuessa.

Lisätiedot

  • Lämmitysmuodot maalämpö
  • Parveke Kyllä
  • Antennijärjestelmä Kaapeli-tv
  • Tehdyt remontit Toimeksiantaja asennuttanut taiteovet makuuhuoneen ja olohuoneen väliin. Asunto on pintaremontoitu aiemman osakkaan toimesta. Keittiötä on laajennettu aiemman osakkaan toimesta.

Tilat, materiaalit ja varustelu

  • Muu varustelu sälekaihtimet/rullaverhot, irralliset kaapit, pyykinpesukone
  • Kate Pelti
  • Käytetyt rakennusmateriaalit betoni
  • Keittiön varustelu Pyykinpesukoneliitäntä, pyykinpesukone (Gorenje, kuuluu kauppaan)
  • Keittiön muu varustelu liesituuletin, astianpesukone
  • Liesi kaasu, erillisuuni
  • Jääkaappi ja pakastin jääkaappi/pakastin
  • Keittiön lattia korkki
  • Kylpyhuoneen kuvaus Varusteet: Suihku, suihkuseinä, peilikaappi, kiinteät valaisimet, allaskaappi, wc-istuin ja bidee-suihku
  • Kylpyhuoneen lattia laatta
  • Makuuhuoneiden määrä 2
  • Makuuhuoneen lattia parketti
  • Parveke lasitettu
  • Parvekkeen suunta kaakko
  • Olohuoneen lattia parketti

Tontti

  • Koko 8 033 m²
  • Omistus Vuokrattu
  • Maanvuokraaja Helsingin kaupunki
  • Kaavoitustilanne Asemakaava
  • Kaavoitustiedot Puotilan venesataman maa- ja vesialueelle suunnitellaan uutta asuinaluetta noin 2 500 asukkaalle. Kaupunkilaisilta saadun palautteen ja viranomaislausuntojen perusteella tarkastettu kaavaehdotus laaditaan vuonna 2025. Kaupunkiympäristölautakunnan jälkeen kaava käsitellään kaupunginhallituksessa ja kaupunginvaltuustossa. Lisätietoja välittäjältä tai Helsingin kaupunki, kaupunkiympäristön toimiala p. 09 310 22111 www.hel.fi/fi/kaupunkiymparisto-ja-liikenne/kaupunkisuunnittelu-ja-rakentaminen/suunnitelmat-ja-rakennushankkeet/puotilanranta
  • Vuokra 89 553,46 € / vuosi
  • Vuokra-aika päättyy 31.12.2075
  • Maanvuokrasopimuksen saa Vuokrantarkistusperiaatteena toimii elinkustannusindeksi. Vuoteen 2030 asti vuokra nousee 5332 €/v.

Taloyhtiö

  • Nimi Bostads Ab Botbystrand
  • Isännöitsijän tiedot Miikka Rautvori, Oiva Isännöinti Oy, Puotila. p. 09-696 2860
  • Huolto Helsingin Kiinteistöpalvelu Oy
  • Tehdyt remontit 2024 Maalämpöön siirtyminen ja luopuminen kaukolämmöstä 2023 Väestönsuojan 2 maalaus, vesikaton maalaus 2022 Julkisivukorjausten suunnittelu 2021 IV-kanavien nuohous, pesutuvan ja saunan lukituksen uusiminen (Pulse) 2020 Pesulan lattian pinnoitus 2019 Kattoremontin yhteydessä yhtiön vinttikomerot uusittu, kattoremontti, peltikatto uusittu, kerhohuoneen kunnostus 2016 Parvekelevyjen vaihto, julkisivun kuntotutkimus 2015 Ikkunoiden, parvekeovien ja parvekeseinien kuntoselvitys 2014 Päiväkodin julkisivun kunnostus, autotallien ovien kunnostus, julkisivun paikka korjauksia, päiväkodinkaton maalaus 2013 Lattiakaivojen pinnoitteiden tarkistus ja kunnostus 2012 Pihan asfaltoinnin uusiminen, sadevesien ohjauksen parannus, leikkivälineiden uusiminen, autotallien katon kunnostus, vaurioituneen parvekkeen kunnostus, kiltatuvan valaistuksen parantaminen 2011 Räystäskourut uusittu, kulkusillat uusittu, piipunhatut uusittu 2010 Ilmanvaihtojärjestelmän nuohous, putkiremontti saatettiin valmiiksi, sadevesikaivot puhdistettu, porrashuoneiden kunnostus (maalaus, valaistus, katkaisijat, palovaroittimet), kuivaushuoneiden puhaltimien uusiminen (kondenssikuivaimiksi), vesijohtojen uusiminen 2009 Viemäreiden kunnostus pinnoittamalla ja sukittamalla, vesijohtojen uusimisen suunnittelu 2008 Piha-alueen osittainen asfaltointi 2007 Huoneistojen patteriventtiilien uusiminen, lämmitysverkoston tasapainotus 2006 Päiväkodin katon uusiminen 2005 Putkiston kuntotutkimus 2004 Sauna 2003 Salaojat korjattu 2002 Autotallien ovien korjaus, julkisivun rappauskorjaus ja kalkkimaalaus 2001 Lämmityksen linjasulut 2000 Lämmönsiirrin 1999 Lukot uusittu 1995 Parvekkeet
  • Tulevat remontit Kunnossapitotarve seuraavien 5 vuoden aikana. **Pihasuunnitelma ja pihan yleinen kunnostaminen **Julkisivut, remontti on käynnissä rapuissa A-D ja valmistuu vuoden 2025 aikana. Remontissa uusitaan julkisivurappaukset ja maalipinnat. **Remontti käynnissä rapuissa A-D ja valmistuu vuoden 2025 aikana. Remontissa uusitaan kaikkien ulkoparvekkeiden teräsbetoniset laatat. Asuntojen ulkoparvekkeiden kaiteet uusitaan ja lisätään parvekelasitukset, jolloin ylimmät parvekkeet katetaan. **Ikkunat ja ulko-ovet: remontti käynnissä A-D rapuissa ja valmistuu vuoden 2025 aikana. Remontissa uusitaan asuntojen ikkunat ja ranskalaisten parvekkeiden ovet. Ulokeparvekkeiden taustaseinän ikkunat ja ovet kunnostetaan. Kellarikerroksen ja porrashuoneiden ikkunat ja ovet kunnostetaan. **Lämmitysjärjestelmä. Kiinteistön vesikiertoisen lämmitysjärjestelmän energianlähde vaihtuu kaukolämmöstä maalämpöön. Patteriverkoston tasapainoitus. **Sähkö- ja tietojärjestelmä, tutkitaan nykyisen sähkö- ja tietojärjestelmän kuntoa. Palovaroittimet siirtyivät taloyhtiön hoitovastuulle 1.1.2024 ja siirtymäaika päättyy 31.12.2025.
  • Taloyhtiön autopaikat Autopistokepaikkoja: 17, Autotalleja: 18
  • Huoneistojen lukumäärä 109
  • Taloyhtiössä sauna, talopesula, kuivaushuone, mankeli, askarteluhuone, väestönsuoja
  • Taloyhtiössä muuta Helsingin kaupungin ympäristöterveysyksikkö on määrännyt tuppakkalain (549/2016) 79§:n mukaisen tupakoitikiellon Bostads Ab Botbystrandin huoneistoparvekkeille, mukaan lukien ranskalaiset parvekkeet. Asumisviihtyvyyden vuoksi tupakointi rappu/kellarikäytävissä, tuuletusparvekkeilla sekä ulko-ovien edessä ja seinien läheisyydessä on myös ehdottomasti kielletty.

Yrityksen tiedot

  • Yrityksen nimi Strand Properties Oy, Helsinki
  • Toimiston nimi Strand Helsinki
  • Osoite Erottajankatu 19, HELSINKI