Takaisin kohdelistaukseen

Michailowinkatu 11, Kakola/ Kakolanmäki, Turku

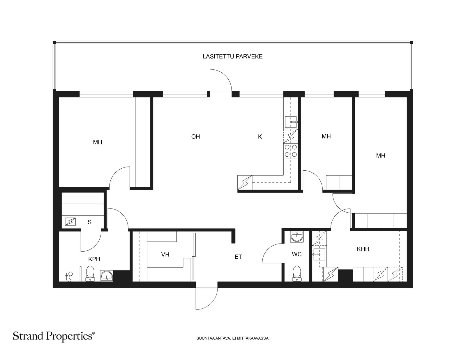
488 000 € • 4h, k, kph/s/wc, khh, wc, vh, et, lasitettu parveke, oma tontti • 97 m² • 2018

Susanna Venho susanna@strand.fi +358 40 501 9045 Strand Properties Brand Partner,
Kiinteistönvälittäjä LKV, KiAT
Susanna Venho LKV Oy | 3464393-6

Haluatko lisätietoja?

Ota yhteyttä, tai jätä yhteystietosi.

Jätä yhteydenottopyyntö

2018 valmistuneesta Asunto Oy Turun Linnanpuistosta vapautumassa tontti osuutensa jo lunastanut, kolmen makuuhuoneen koti, lähes 30 neliöisellä, koko kodin levyisellä lasitetulla parvekkeella Turun Linnan suuntaan.

Rakennusvaiheessa on tehty mittava laatutason nosto. Lähes kaikki kodin kiintokalusteet ovat Puustellin, kodinkoneista löytyy niin Gaggenaun kuin AEG:n mallistoa, lattiamateriaaliksi on valikoitunut kestävä Pergon laminaatti, sekä asennettu asumisviihtyvyyttä tuova viilentävä ilmalämpöpumppu.

Sisään astutaan eteiseen, jonka yhteyteen on suunniteltu etenkin lapsiperheitä ajatellen walk in- closet, jossa runsaasti tilaa ulkovaatteille, lasten rattaille tai vaikka harrastusvälineille.

Olohuone, ruokailutila ja keittiö ovat yhtenäistä tilaa, johon tulvii valoa kodin suurista ikkunoista.
Keittiö on varustettu laadukkailla kodinkoneilla, kestävällä Dektonin kvartsitasolla ja Oraksen sähköhanalla. Täällä voit helposti kestitä useampaakin vierasta kerralla tai nauttia oman perheen yhteisistä kokkaus hetkistä. Aikaisesta keväästä myöhäiseen syksyyn, tilan jatkeena toimii loistavasti parveke.

Kodin makuuhuoneet sijoittuvat lounaan suuntaan ja niissä kaikissa on kiinteät kaapistot.

Saunallinen kylpyhuone, erillinen wc ja tilava kodinhoitohuone, johon mahtuu halutessaan niin pyykinpesukone, kuivausrumpu kuin kuivauskaappikin. Lisäksi tänne on sijoitettu toinen jääkaappi/pakastin.

Taloyhtiön tontti on valinnainen vuokratontti, mutta tämän huoneiston osuus tontista on jo lunastettu, joten huoneistolle ei kohdistu tontin vuokravastiketta.

Mahdollisuus ostaa asunnon oston yhteydessä sähköauton latausasemalla varustettu hallipaikka nro 24, taloyhtiön omistamasta autohallista.

Kakolan asuinalue on yksi Turun trendikkäimpiä, joka yhdistää historialliset vanhan vankilan rakennukset
Michailowinkadun uusiin kerrostaloihin. Kakolan palvelut ja Barkerin puisto muutaman askeleen päässä kotiovelta. Funikulaarikyydillä olet hetkessä jokirannan sykkeessä ja keskustakin lyhyen kävelymatkan päässä.

Tervetuloa tutustumaan ja ihastumaan!

Lisätiedot ja esittelyt
Susanna Venho
040 501 9045
susanna@strand.fi

Näytä kokonaan

Kohteen perustiedot

  • Kohdenumero 21606796
  • Sijainti Michailowinkatu 11, 20100 Turku
  • Omistusmuoto Oma
  • Huoneistoselitelmä 4h, k, kph/s/wc, khh, wc, vh, et, lasitettu parveke, oma tontti
  • Huoneita 4 h
  • Hallintamuoto Asunto-osakeyhtiö
  • Tyyppi Kerrostalo (osake)
  • Asuintilojen pinta-ala 97 m²
  • Pinta-alojen lisätiedot Yhtiöjärjestyksen mukainen pinta-ala on 4h+kt+khh+s, 97 m², krs 1. Pinta-ala ei ole tarkistusmitattu.
  • Kerros 4/6
  • Vapautuminen sopimuksen mukaan
  • Kohteen kunto Hyvä
  • Energialuokka Ei lain edellyttämää energiatodistusta
  • Rakennusvuosi 2018
  • Käyttöönottovuosi 2018

Hinta ja kustannukset

  • Velaton hinta 488 000 €
  • Myyntihinta 486 468,05 €
  • Velkaosuus 1 531,95 €
  • Vuokrattu Ei
  • Huoneiston yhtiövastike yht 428,26 € / kk
  • Rahoitusvastike 40,26 € / kk
  • Hoitovastike 388 € / kk

Asuinkustannukset

  • Muut maksut Käyttösähkö kulutuksen mukaan. Tämän hetkisillä asukkailla sähkönkulutus on ollut n. 7300 kWh/vuosi. Vesimaksuennakko 20€/hlö/kk, tasaus 2 krt./vuosi. Varainsiirtovero 1,5%. Taloyhtiön osakeluettelo on siirretty Maanmittauslaitoksen huoneistotietojärjestelmään, ostajan tulee hakea omistusoikeuden rekisteröintiä Maanmittauslaitokselta. Ostaja vastaa omistusoikeuden rekisteröintikustannuksista, osakekirjan mitätöinnistä aiheutuvista kustannuksista sekä mahdollisesta hakemusmaksun korotuksesta. Ostajan pankin ostajalta mahdollisesti veloittamista kaupantekoon, omistusoikeuden rekisteröintiin tai panttausmerkinnän hakemiseen liittyvistä kustannuksista ostaja saa tiedon pankiltaan.

Lisätiedot

  • Lämmitysmuodot kaukolämpö
  • Oma sauna Kyllä
  • Hissi Taloyhtiössä on hissi
  • Parveke Kyllä
  • Antennijärjestelmä Kaapeli-tv
  • Tehdyt remontit Parvekkeen verhot asennettu ja olohuoneen kaapiston uudelleen levytys, sekä kiuas uusittu 2025. Parvekkeen tasojen/kaapiston uusinta, vaatehuoneen liuovet vaihdettu ja kodinhoitohuoneen kalusteet uusittu 2024.

Tilat, materiaalit ja varustelu

  • Muut säilytystilat kellarikomero
  • Muu varustelu ilmalämpöpumppu
  • Kate Bitumikermi
  • Käytetyt rakennusmateriaalit betoni
  • Keittiön varustelu Puustellin keittiö. Allaskaapissa sähköinen ovenavausmekanismi. Jääkaappi-pakastin (AEG), integroidut kodinkoneet: astianpesukone (Gaggenau), mikro, induktio liesitaso ja pyrolyysiuuni (AEG), Oraksen sähkohana, liesituuletin, Dekton kvartsitasot, Blankon allas, välitilassa lasi, muilta osin maalattu. Pergo midnight- laminaattilattia.
  • Kylpyhuoneen kuvaus Puustellin kalusteet. Lattialämmitys (suorasähkö/kulutuksen mukaan osakkaalla).
  • Kylpyhuoneen varustelu suihkuseinä, wc-istuin, suihku, peilikaappi
  • Kylpyhuoneen lattia laatta
  • Kylpyhuoneen seinät kaakeli
  • Saunan kuvaus Harvia torni kiuas uusittu 2025. Lattialämmitys (suorasähkö/kulutuksen mukaan osakkaalla).
  • Kiuas sähkökiuas
  • Saunan lattia laatta
  • Saunan seinät puu
  • Makuuhuoneen kuvaus Pergo midnight- laminaattilattia, seinät maalattu. Kaikissa kiinteät kaapistot.
  • Makuuhuoneiden määrä 3
  • Parveke lasitettu
  • Parvekkeen suunta länsi, lounas
  • Pesutilojen lattia laatta
  • Pesutilojen seinät maalattu
  • WC-tilojen kuvaus Lattialämmitys (suorasähkö/kulutuksen mukaan osakkaalla).
  • WC-tilojen varustelu lattialämmitys, bidee-suihku
  • WC-tilojen lattia laatta
  • WC-tilojen seinät kaakeli

Tontti

  • Koko 4 546 m²
  • Omistus Oma
  • Kaavoitustilanne Asemakaava
  • Kaavoitustiedot Turun rakennusvalvonta/kaavoitus.

Taloyhtiö

  • Nimi Asunto Oy Turun Linnanpuisto
  • Isännöitsijän tiedot Varsinais-Suomen Isännöintitalo Oy Isännöitsija Lars Nyberg 020 7229935 lars.nyberg@isannointitalo.fi
  • Huolto Kiinteistöpalvelut Laine & Nummisto Oy tyonjohto@lainejanummisto.fi
  • Tehdyt remontit 2020 ulkovesiposti, kameravalvonta, pihavalaistuksen uusinta, jätevesipumppaamon varapumppu, pihaistutusten lisääminen, autohallin pölynsidontapinnan uusinta (takuukorjaus) 2021 asennettiin porraskäytävänäytöt 2022 pihasuunnitelman sekä viettoviemärin hankesuunnitelman toteutus 2023 sähköautojen latausvalmius 2024 porraskäytävien huoltomaalaus 2024-2025 lämpimän käyttöveden säätö ja toiminnan tarkastus 2025 taloautomaation palvelimen uusinta
  • Tulevat remontit Parvekelasitusten huoltokierros tehdään koko yhtiössä. Porras A syksyllä 2025 ja portaat B ja C alkaen maaliskuussa 2026. Helmikuussa kerätään tätä varten yksi ylimääräinen hoitovastike.
  • Huoneistojen lukumäärä 127
  • Taloyhtiössä urheiluvälinevarasto, väestönsuoja
  • Taloyhtiössä muuta Taloyhtiö ei vuokraa autopaikkoja. Taloyhtiössä on voimassa kaupungilta haettu tupakointikielto parvekkeilla. Taloyhtiöllä on DNA 10/10Mbit/s laajakaistasopimus josta ei veloiteta erikseen yhtiövastikkeen yhteydessä. Oma sähkösopimus sähköntoimittajan kanssa.

Yrityksen tiedot

  • Yrityksen nimi Strand Properties | Susanna Venho LKV Oy
  • Toimiston nimi Strand Turku
  • Osoite Aurakatu 1, 20100