Takaisin kohdelistaukseen

Vepontie 3, Bläsnäs, Parainen

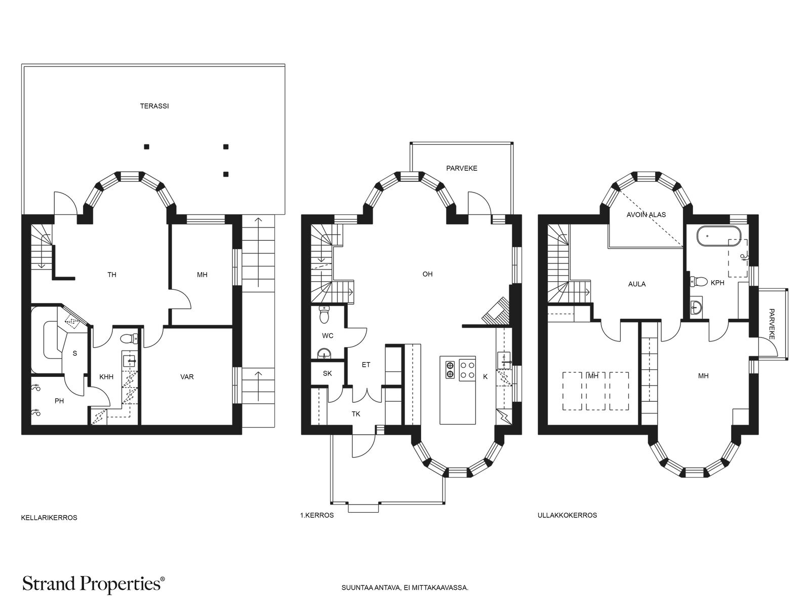
559 000 € • 5h, k, 2x kph, wc, s, • 186 m² • 2005

Harry Lockmer harry@strand.fi +358 40 300 2302 Strand Properties Brand Partner,
Kiinteistönvälittäjä LKV
Harry Lockmer LKV | 2498435-8

Haluatko lisätietoja?

Ota yhteyttä, tai jätä yhteystietosi.

Jätä yhteydenottopyyntö

Meren rannalla, kallion päällä komeilee koti, jossa jokainen hetki on hitusen toistaan kauniimpi.

Vuonna 2005 valmistunut muuttovalmis paritalokoti tarjoaa modernia asumismukavuutta Bläsnäsissä, lähellä Paraisten keskustaa. 168-neliöiset asuintilat jakautuvat kolmeen kerrokseen, tuoden väljyyttä ja toimivaa tilajakoa. Oma lämmin autotalli viimeistelee asumismukavuuden ja tarjoaa suojaisan paikan niin autolle kuin harrastusvälineille.

Sisääntulokerroksessa perheen ja ystävien yhdessäolo saa arvoisensa puitteet takkatulen loimutessa taustalla. Vuonna 2025 remontoidut tilat luovat harmonisen kokonaisuuden, jota hallitsevat henkeäsalpaavat merimaisemat. Erkkerin lattiasta harjaan ulottuvat ikkunat päästävät luonnonvalon sisään suurieleisesti.

Tilava keittiö on remontin myötä saanut ylleen ajattoman ilmeen ja laadukkaat materiaalit. Saarekkeen ansiosta keittiössä on runsaasti säilytys- ja työskentelytilaa, ja kattava varustelu – kuten kaasuliesi – vastaa vaativammankin ruoanlaittajan toiveisiin.

Makuuhuoneet sijaitsevat ylä- ja alakerrassa, omassa rauhassaan. Yläkerran päämakuuhuone ja sen yhteydessä oleva elegantti En suite -kylpyhuone vievät arjen ylellisyyden uudelle tasolle. Kattoikkunan alla seisova kylpyamme ja runsas luonnonvalo tuovat tilaan hotellimaista tunnelmaa. Päämakuuhuoneesta on kulku yläkerran parvekkeelle, josta niin ikään aukeaa upeat maisemat alas merelle.

Alakerrassa tilava kodinhoitohuone runsain kaapistoin ja työskentelytasoin tekee päivittäisistä askareista vaivattomia. Valoisa aulatila toimii viihtyisänä oleskelupaikkana, ja sieltä on kulku merenpuoleiselle terassille. Tyylikäs tummanpuhuva sauna tarjoaa rauhalliset puitteet rentoutumiseen.

Myös ulkotiloissa nautitaan arjen luksuksesta. Helppohoitoinen piha tuo huolettomuutta, ja kaksi hulppeaa terassialuetta kutsuvat viettämään unohtumattomia iltoja merimaisemista nauttien. Omassa rauhassa ja yksityisyydessä nautit myös hiljaisista kesäaamuista kahvikupin äärellä.

Asukkaiden yhteiskäytössä on rannan oleskelualue ja venelaituri, johon kiinnität vaikka purjeveneen. Bläsnäsviken toimii porttina saaristoon: lahdelta avautuu yhteys Airistolle ja sieltä edelleen Turun saariston lukemattomille reiteille.

Tämä Paraisten koti sopii erinomaisesti myös vapaa-ajan asumiseen. Arjen palvelut ovat lähellä, mutta saariston rauha alkaa jo omalta pihalta. Luontopolut ja läheinen Bläsnäsin uimaranta kutsuvat ulkoilemaan. Turkuun on matkaa noin 25 kilometriä ja Helsinkiin noin 180 kilometriä.

Tervetuloa ihastumaan merimaisemiin ja kokemaan tämän kodin ainutlaatuinen tunnelma paikan päällä!

Lisätiedot ja myynti:
Harry Lockmer
040 3002 302 | harry@strand.fi

Näytä kokonaan

Kohteen perustiedot

  • Kohdenumero 21413156
  • Sijainti Vepontie 3, 21600 Parainen
  • Omistusmuoto Oma
  • Huoneistoselitelmä 5h, k, 2x kph, wc, s,
  • Huoneita 5 h
  • Hallintamuoto Asunto-osakeyhtiö
  • Tyyppi Rivitalo (osake)
  • Asuintilojen pinta-ala 186 m²
  • Kerros 1/3
  • Vapautuminen sopimuksen mukaan
  • Kohteen kunto Hyvä
  • Energialuokka Ei lain edellyttämää energiatodistusta
  • Rakennusvuosi 2005
  • Käyttöönottovuosi 2005

Hinta ja kustannukset

  • Velaton hinta 559 000 €
  • Myyntihinta 559 000 €
  • Velkaosuus -
  • Vuokrattu Ei
  • Huoneiston yhtiövastike yht 310,14 € / kk
  • Hoitovastike 310,14 € / kk
  • Lisätietoa vastikkeista Hoitovastike sisältää autotallin vuokran.

Asuinkustannukset

  • Muut maksut Sähkönkulutus vuonna 2025 12500 kWh. Varainsiirtovero 1,5 % velattomasta kauppahinnasta. Taloyhtiön osakeluettelo on ennen kaupantekoa siirretty huoneistotietojärjestelmään, ostajan tulee hakea omistusoikeuden rekisteröintiä Maanmittauslaitokselta. Ostaja vastaa omistusoikeuden rekisteröintikustannuksista, mahdollisista osakekirjan mitätöinnistä aiheutuvista kustannuksista sekä mahdollisesta hakemusmaksun korotuksesta. Ostajan pankin ostajalta mahdollisesti veloittamista kaupantekoon, omistusoikeuden rekisteröintiin tai panttausmerkinnän hakemiseen liittyvistä kustannuksista ostaja saa tiedon pankiltaan.

Lisätiedot

  • Lämmitys 2x ilmalämpöpumppu, sähköpatterit
  • Lämmitysmuodot muu
  • Oma sauna Kyllä
  • Parveke Kyllä
  • Antennijärjestelmä Antenni
  • Tehdyt remontit Remontit 2024-2025: Keittiö uusittu kokonaisuudessaan, keskikerroksen lattiat uusittu, keskikerroksen WC uusittu. Yläkerran kylpyhuone uusittu.
  • Auton säilytys Jokaiselle huoneistolle kuuluu autotalli. Autotallin osakkeet siirtyvät asunnon osakkeiden mukana.

Tilat, materiaalit ja varustelu

  • Tulisija takka
  • Kate Tiilikate
  • Käytetyt rakennusmateriaalit puu, betoni
  • Keittiön varustelu Integroidut kodinkoneet, aamiaiskaappi. Remontoitu 2025, jolloin myös kodinkoneet on uusittu.
  • Keittiön pöydät laminaatti
  • Keittiön muu varustelu liesituuletin, kiinteät valaisimet
  • Liesi kaasu, induktio, erillisuuni
  • Jääkaappi ja pakastin jääkaappi, pakastin
  • Keittiön lattia laatta
  • Keittiön seinät maalattu
  • Kylpyhuoneen kuvaus Yläkerran kylpyhuone: Suihku, kylpyamme, WC-istuin, pesuallas, allaskaappi, peili. Laattalattia, seinät kaakeloitu. Alakerran kylpyhuone: 2x suihku, laattalattia, seinät kaakeloitu.
  • Kiuas sähkökiuas
  • Saunan lattia laatta
  • Saunan seinät puu
  • Makuuhuoneen kuvaus Yläkerran makuuhuoneissa laattalattia, alakerrassa parketti.
  • Makuuhuoneiden määrä 4
  • Parveke ulostyönnetty
  • Olohuoneen lattia laatta
  • Olohuoneen seinät maalattu
  • Pesutilojen lattia laatta
  • Pesutilojen seinät kaakeli
  • WC-tilojen kuvaus WC-istuin, pesuallas, allaskaappi, peili, pidee-suihku, lattiakaivo
  • WC-tilojen lattia laatta
  • WC-tilojen seinät kaakeli

Tontti

  • Koko 3 641 m²
  • Omistus Oma
  • Kaavoitustilanne Asemakaava

Taloyhtiö

  • Nimi Asunto Oy Paraisten Meritähti
  • Isännöitsijän tiedot Turunmaan kiinteistöt Oy, Sverker Karlsson
  • Huolto Asukkaat
  • Tehdyt remontit 2017: Parvekkeiden, sokkeleiden ja portaiden korjausta, huoltomaalausta ja laiturin korjaus. 2022: Ilmanvaihtojärjestelmän huoltotyö. 2020: Laiturin korjaus.
  • Tulevat remontit Vuodelle 2026 on suunniteltu parveke-remontti ja julkisivun huolto. Kustannusarvio tämän asunnon osalta on noin 10000 euroa.
  • Taloyhtiön autopaikat Autotalleja: 4
  • Huoneistojen lukumäärä 4

Yrityksen tiedot

  • Yrityksen nimi Strand Properties | Harry Lockmer LKV
  • Toimiston nimi Strand Turku
  • Osoite Aurakatu 1, Turku