Takaisin kohdelistaukseen

Juhanintie 1 A, Mankkaa, Espoo

1 250 000 € • 5h, k, sh, psh, s, khh, wc x 2, vh x 2, var., ask. autokatos, autotalli • 195 m² • 2022

Rona Pomoell rona@strand.fi +358 40 515 4747 Strand Properties Brand Partner,
Kiinteistönvälittäjä LKV, LVV
Rona Pomoell LKV | 2913189-9

Haluatko lisätietoja?

Ota yhteyttä, tai jätä yhteystietosi.

Jätä yhteydenottopyyntö

Poikkeuksellinen unelmakoti Mankkaalla - kuin suoraan sisustuslehdestä!

Tämä vuonna 2022 valmistunut omakotitalo on sisustussuunnittelijan itselleen suunnittelema ja rakennuttama huippulaadukas kokonaisuus, jossa jokainen yksityiskohta on tarkkaan harkittu. Lopputuloksena on käytännöllisyyttä, toimivuutta ja tyyliä yhdistelevä koti, joka hurmaa jo ensisilmäyksellä.

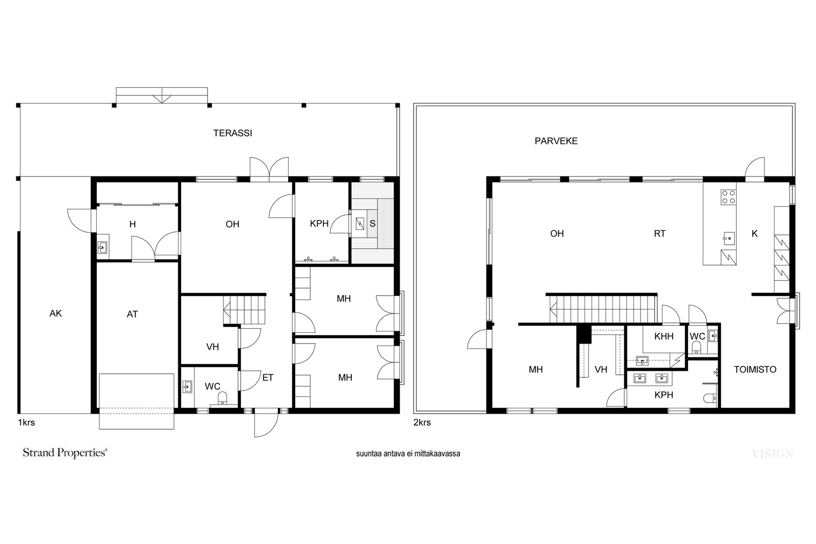
Alakerta tarjoaa kodikkaan ja monikäyttöisen tilakokonaisuuden, jossa on viehättävä TV-huone, kaksi makuuhuonetta sekä upea saunaosasto. Kylpyhuoneen tyylikäs laatoitus, modernit suihkut ja laadukkaat materiaalit huokuvat arjen luksusta. Eteisessä sijaitsee käytännöllinen ja tilava vaatehuone sekä poikkeuksellisen hieno vieras-WC. Autotallista on käynti suoraan sisätiloihin - täydellistä erityisesti sateisina ja kylminä päivinä. Lisäksi tontilla on erillinen autokatos ja tilava tekninen tila säilytystarpeisiin.

TV-huoneesta avautuu suora kulku loppuun asti viimeisteltyyn piha-alueeseen, joka on kuin oma keidas. Upeat kivetykset, helppohoitoiset istutukset, tunnelmallinen valaistus ja suuri terassi tekevät pihasta täydellisen paikan rentoutumiselle ja yhdessäololle.

Yläkerta on avara ja valoisa kokonaisuus, jossa huippumoderni keittiö suuren saarekkeen kera yhdistyy viihtyisään olohuoneeseen. Avonainen työtila toimii erinomaisesti kotitoimistona, mutta on helposti muutettavissa lisämakuuhuoneeksi. Päämakuuhuoneen yhteydessä sijaitsee ylellinen pukeutumishuone sekä oma en suite -kylpyhuone. Koko yläkerran kiertävä terassi toimii upeana jatkeena sisätiloille - suurista liukuovista kulku kesäisin kuin suoraan olohuoneesta ulkoilmaelämään.

Sijainti Mankkaalla on mitä ihanteellisin - rauhallinen ja vehreä, mutta silti kaikki tarvittava on lähellä. Lähikaupat, koulut, päiväkodit ja sujuvat liikenneyhteydet tekevät arjesta helppoa ja vaivatonta. Tämä koti on unelma erityisesti lapsiperheelle, joka arvostaa laatua, tilaa ja tyyliä.

Tervetuloa ihastumaan - tämä koti pitää nähdä paikan päällä!

Esittelyt ja myynti:
Rona Pomoell, LKV, LVV
rona@strand.fi
0405154747

Näytä kokonaan

Kohteen perustiedot

  • Kohdenumero 21135107
  • Sijainti Juhanintie 1 A, 02180 Espoo
  • Huoneistoselitelmä 5h, k, sh, psh, s, khh, wc x 2, vh x 2, var., ask. autokatos, autotalli
  • Huoneita 5 h
  • Tyyppi Omakotitalo (kiinteistö)
  • Asuintilojen pinta-ala 195 m²
  • Pinta-alojen lisätiedot Asemapiirroksen mukaan: 1krs 39,9 m2+2krs 89,6 m2 = 130m2 Maanpäällinen kellari (TV/takkahuone) 65m2.
  • Kerroksia 2
  • Vapautuminen sopimuksen mukaan
  • Kohteen kunto Hyvä
  • Energialuokka A2018.
  • Rakennusvuosi 2022
  • Käyttöönottovuosi 2022

Hinta ja kustannukset

  • Velaton hinta 1 250 000 €
  • Myyntihinta 1 250 000 €
  • Velkaosuus -
  • Vuokrattu Ei

Asuinkustannukset

  • Muut maksut Lämmitys ja sähkö: 2024 vuodelta 11 775 kWh Kiinteistövakuutus: 465€ / vuosi Kiinteistövero: Noin 1100€ / vuosi Jätehuolto: Noin 180€ /vuosi (Juhanintie 1A:n osuus) Vesi: Perus- ja käyttömaksut 2024 vuodelta 1150€ Valokuitu (Elisa): 40-55€/kk riippuen halutusta nopeudesta Kaapeli tv (Elisa): 9,99€/kk Esitetyt asumiskustannukset perustuvat nykykäyttöön ja voivat siten olla pienempiä tai suurempia riippuen asukasmäärästä, asumistottumuksista sekä palveluntarjoajasta. Uudet laskennalliset kiinteistöverotusarvot otetaan käyttöön asteittain vuosina 2026-2033. Maksettava kiinteistövero voi nousta enintään 20% vuodessa, mutta yhteensä enintään kolminkertaiseksi alkuperäiseen verrattuna.

Lisätiedot

  • Lämmitysmuodot maalämpö
  • Oma sauna Kyllä
  • Sähköliittymä siirtyy Kyllä
  • Antennijärjestelmä Kaapeli-tv
  • Tie perille Kyllä

Tilat, materiaalit ja varustelu

  • Viemäri kunnan
  • Säilytystilojen kuvaus Varasto / tekninen tila ja kaksi vaatehuonetta.
  • Vesihuolto kunnan
  • Kate Peltikate
  • Rakennus- ja pintamateriaalien kuvaus Täyskivitalo, jossa myös yläpohja on kiveä. Kuiturappaus 9 mm Kevytbetoniharkko 375 mm
  • Keittiön varustelu Kotimainen design mittatilauskeittiö, mustaa tammiviilua. Dekton-taso saarekkeessa, vitriinikaapin ja aamiaiskaapin takaseinässä. Kodinkoneet Bosch (täyshöyryuuni & uuni/mikro). Valaistus Saas Instruments.
  • Kylpyhuoneen kuvaus Kylpyhuoneet ja WC x 2: Kalkkikivilaatta Jura Grey, sisäänrakennetut suihkut ja hanat Tapwell. Valaistus Saas Instruments.
  • Saunan kuvaus Puusepän käsityönä toteutettu. Kiuas Tulikivi ja vuorattu mittatilauksena Jura Grey kalkkikivellä, lauteet ja paneelit lämpökäsitelty haapa. Valaistus Saas Instruments.
  • Kiuas sähkökiuas
  • Makuuhuoneen kuvaus Tammi kalanruoto kovapuuparketti
  • Makuuhuoneiden määrä 4

Tontti

  • Rakennusoikeus e-luku 0.25
  • Tontin nimi 26047
  • Koko 1 162 m²
  • Omistus Oma
  • Kaavoitustilanne Asemakaava
  • Kiinteistötunnus 49-26-47-1

Yrityksen tiedot

  • Yrityksen nimi Strand Properties | Rona Pomoell LKV
  • Toimiston nimi Strand Helsinki
  • Osoite Erottajankatu 19, Helsinki