Takaisin kohdelistaukseen
Esittely 16.11.2025 klo 11.00 - 11.40

Poiju 4B, Karhusaari, Helsinki

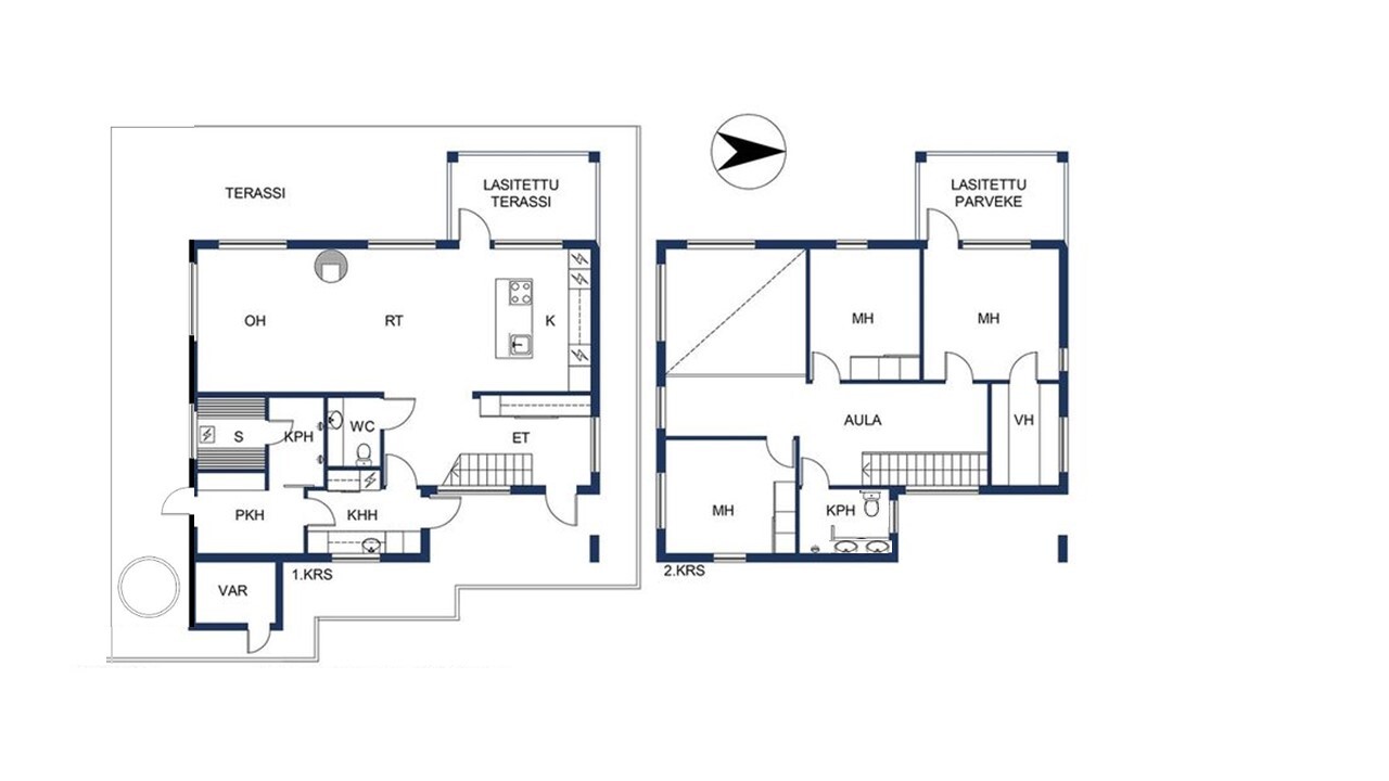
1 145 000 € • 5h,k,s,kph,khh,va,wc,vh,autokatos (Yht.järj. mukaan 5h+k+s+ph+khh+varasto) • 179 m² • 2022

Mari Varonen mari@strand.fi +358 40 680 7752 Strand Properties Brand Partner,
Ylempi kiinteistönvälittäjä, YKV, LKV, DI
Mari Varonen LKV | 3191476-1

Haluatko lisätietoja?

Ota yhteyttä, tai jätä yhteystietosi.

Jätä yhteydenottopyyntö

Moderni Kuusamon hirsitalo 2022, venepaikka ja 2 auton katospaikka Karhusaaren merellisellä alueella.

Karhusaaren vehreässä ja merellisessä ympäristössä odottaa upea koti, joka yhdistää perinteisen hirsirakentamisen lämpimän tunnelman ja modernin arkkitehtuurin selkeän linjakkuuden. Tämä 2022 valmistunut Kuusamon Hirsitalojen edustava omakotitalo tarjoaa 179 m² laadukasta asuintilaa kahdessa kerroksessa sekä venepaikan Karhusaaren yhteisrannasta.

Sisääntulokerroksessa olohuoneen 5,5 metrin huonekorkeus ja suuret ikkunat tuovat luonnon osaksi sisustusta - näkymissä yhdistyvät metsä ja meri. Noblessan moderni keittiö marmoritasoineen ja integroiduilla Boschin laitteilla kutsuu kokkaamaan ja kokoontumaan ison saarekkeen ympärille. Olohuoneen ja keittiön jatkeena on lasitettu terassi, jolta avautuu näkymä etelään.

Kodissa on kolme makuuhuonetta, joista master bedroomissa on oma vaatehuone sekä käynti lasitetulle parvekkeelle. Saunaosasto Tulikiven pyöreällä sähkökiukaalla ja pukeutumistilalla tarjoaa täydellisen rentoutumispaikan - vilvoittelu onnistuu suoraan terassille astuen. Yläkerran kylpyhuoneessa on kaksi pesuallasta, lattialämmitys ja laadukkaat Villeroy & Boch -kalusteet.

Piha ja Siperian lehtikuusen laadukkaat terassialueet kiertävät taloa eri ilmansuuntiin, ja etelän puolella odottaa iso terassi sekä poreallas. Lisäksi kodista löytyy kodinhoitohuone omalla sisäänkäynnillä, lämmin varasto sekä kahden auton katos sähköauton latausvalmiudella.

Karhusaari on ainutlaatuinen asuinalue, jossa luonto, meri ja yhteisöllisyys yhdistyvät. Taloyhtiön osakkeiden myötä saat oikeuden käyttää yksityistä rantaa, tenniskenttää ja omaa venepaikkaa. Täältä on helppo lähteä veneilemään, ulkoilemaan tai nauttimaan saaristolaismaisemasta - vain noin puolen tunnin ajomatkan päässä Helsingin keskustasta.

Tämä koti tarjoaa harvinaisen yhdistelmän modernia mukavuutta, perinteikästä hirsirakentamista ja merellistä elämäntapaa.

Lisätiedot välittäjältä,
Ylempi kiinteistönvälittäjä, LKV, YKV, DI,
Strand Properties Brand Partner
Mari Varonen LKV
040 680 7752 - mari@strand.fi

Avainsanat: hirsitalo, venepaikka, autokatos, Karhusaari, yhteisranta, saunaosasto, Villeroy & Boch, poreallas, lasitettu terassi, Siperian lehtikuusi, marmoritaso, korkea huonekorkeus, terassi, maalämpö, oma tontti, sähköauton latausvalmius.

Näytä kokonaan

Kohteen perustiedot

  • Kohdenumero 20415185
  • Sijainti Poiju 4B, 00890 Helsinki
  • Omistusmuoto Oma
  • Huoneistoselitelmä 5h,k,s,kph,khh,va,wc,vh,autokatos (Yht.järj. mukaan 5h+k+s+ph+khh+varasto)
  • Huoneita 5 h
  • Hallintamuoto Asunto-osakeyhtiö
  • Tyyppi Omakotitalo (osake)
  • Asuintilojen pinta-ala 179 m²
  • Pinta-alojen lisätiedot Pinta-alaan sisältyy lämmin varasto. Näiden neliöiden lisäksi on lasitettu terassi, lasitettu parveke ja autokatos. Pinta-ala ei ole tarkistusmitattu.
  • Kerros 1-2/2
  • Vapautuminen sopimuksen mukaan
  • Kohteen kunto Hyvä
  • Energialuokka B2018. Lisätietoja energialuokasta: Voimassa 8.8.2032 asti.
  • Rakennusvuosi 2022
  • Käyttöönottovuosi 2022

Hinta ja kustannukset

  • Velaton hinta 1 145 000 €
  • Myyntihinta 1 145 000 €
  • Velkaosuus -
  • Vuokrattu Ei
  • Huoneiston yhtiövastike yht 179 € / kk
  • Hoitovastike 179 € / kk
  • Lisätietoa vastikkeista Varsinainen yhtiökokous 09.04.2025 on päättänyt olla keräämättä hoitovastikkeita vuoden 2025 kesä-, heinä-, elo- ja syyskuulta. Hoitovastike 01.10.2025 alkaen 1,00 €/osake.

Asuinkustannukset

  • Vesimaksu 18 € / kk oma mittari
  • Muut maksut Sähkön kulutus noin 19 000 kwh/vuosi sisältäen yhden sähköautoon latauksen. Vesimaksu ennakkoa, tasaus todellisen kulutuksen mukaan.

Lisätiedot

  • Pihan kuvaus Tämän kodin piha-alue on todellinen elämisen jatke – vehreä ja viihtyisä keidas, jossa arki ja juhla sulautuvat yhteen. Siperian lehtikuusesta rakennettu terassi kiertää koko talon ja tarjoaa monipuoliset puitteet oleskeluun ja nautiskeluun päivän jokaisessa vaiheessa. Sisääntulon puolella avautuu iso, tasainen nurmikenttä, joka kutsuu peleihin, leikkeihin ja kesäisiin illanviettoihin. Sivupihan luonnonmukainen kuntta tuo rauhoittavaa vihreyttä ja metsän tunnelmaa. Etelään, meren suuntaan, sijoittuu kodin helmi – tilava aurinkoterassi, jonka lasikaide avaa näkymät maisemaan. Täällä voit rentoutua porealtaassa, nauttia auringosta ja grilli-illoista. Idän puolelta löytyy oma terassipatio, jota reunustaa kuntta – täydellinen paikka aamukahville lintujen laulaessa.
  • Lämmitysmuodot maalämpö, Ilmalämpöpumppu
  • Oma sauna Kyllä
  • Parveke Kyllä
  • Antennijärjestelmä Kaapeli-tv
  • Tehdyt remontit 2023 Samsung ilmalämpöpumppu
  • Auton säilytys Taloyhtiössä 6 kpl autokatospaikkoja ja 2 kpl vieraspaikkoja. Autokatokset on asfaltoitu. Huoneistolla kahden auton katos sähköauton latausvalmiudella. Lisäksi yhtiössä autotalli omina osakkeinaan.
  • Päiväkoti Helsingin kaupunki - Landbo Förskola 3,35 km Helsingin kaupunki - Daghemmet Landbo 3,35 km Helsingin kaupunki - Päiväkoti Sakarinmäki 3,35 km Steiner Lekskolan Gryningen
  • Koulu Peruskoulut: Helsingin kaupunki - Sakarinmäen Koulu Ala-Aste 3,35 km Helsingin kaupunki - Sakarinmäen Yläaste 3,35 km Kulttuurin ja vapaa-ajan toimiala, Helsingin kaupunki - Sakarinmäen peruskoulu / Hiekkakenttä 1 3,35 km Helsingin kaupunki - Aurinkolahden Peruskoulu Kanava Lukiot: Helsingin kaupunki - Vuosaaren Lukio Helsingin kaupunki - Palke Vuosaaren Lukio
  • Palvelut Karhusaaren kauppa Winberg & Winberg 1,4 km K-Market Östersundom 3,04 km, Alepa Vuosaaren Satama, K-Market Aurinkolahti Helsinki, K-Market Aurinkolahti
  • Muut palvelut Karhusaaren venesatama 1,3 km, Karhusaaren urheilupuisto Limitless Oy 4,59 km Helsingin kaupunki - Sakarinmäen kentän luistelukenttä 3,35 km Heyar Oy 4,48 km Helsingin kaupunki - Landbonkenttä / Lähiliikuntapaikka (Miniareena)
  • Liikenneyhteydet Bussipysäkki Merikapteenintie n. 200m Bussipysäkki Reelinki n. 500m

Tilat, materiaalit ja varustelu

  • Säilytystilojen kuvaus Lämmin varasto asunnon yhteydessä (käynti ulkoa) 5,6 m2.
  • Muu varustelu ilmalämpöpumppu
  • Tulisija takka
  • Kate huopa
  • Käytetyt rakennusmateriaalit hirsi
  • Muut rakennusmateriaalit Kuusamon hirsitalot Oy
  • Keittiön varustelu Tämän kodin sydän on tyylikäs ja moderni Noblessan laatukeittiö, jossa ajattomat vetimettömät ovet ja näyttävä marmoritaso luovat elegantin kokonaisuuden. Keittiö on varustettu Boschin huippuluokan kodinkoneilla, jotka tekevät ruoanlaitosta nautinnon. Tilaa hallitsee suuri saareke, jonka äärellä yhdistyvät arjen käytännöllisyys ja sosiaalinen yhdessäolo. Saarekkeeseen on integroitu pesuallas ja induktioliesitaso sisäänrakennetulla liesituulettimella, kun taas toiselta puolelta löytyvät viinikaappi ja viihtyisä aamiaistaso. Käytännölliset kaapistot tuovat runsaasti säilytystilaa. Keittiön varusteluun kuuluvat myös erillisuuni, integroitu mikroaaltouuni, pavut jauhava kahvikone, jääkaappi, pakastin ja astianpesukone – kaikki huomaamattomasti kalusteisiin integroituna. Viinikaappi viimeistelee kokonaisuuden ja kutsuu nauttimaan arjen hetkistä. Keittiön vierestä on suora kulku lasitetulle terassille, joka jatkaa tilaa ulos ja tarjoaa täydelliset puitteet niin aamukahville kuin illanvietoille. Lattia on kaunista tammilankkuparkettia ja seinät maalattuja, mikä antaa tilalle raikkaan ja modernin ilmeen.
  • Kylpyhuoneen kuvaus Tämän kodin saunaosasto on suunniteltu todelliseksi hyvinvoinnin keitaaksi. Tyylikäs pukeutumistila kutsuu rauhoittumaan saunomisen lomassa ja johdattaa lasiovien kautta tilavalle terassille, jossa tunnelma jatkuu luonnon helmassa. Saunassa yhdistyvät moderni design ja perinteinen tunnelma: lämmin sävyiset puupinnat, laadukas kiuas sekä harkitut yksityiskohdat tekevät löylyhetkistä elämyksen. Suuresta ikkunasta avautuu näkymä luontoon, mikä tuo tilaan avaruutta ja valoa. Pesutiloissa on kaksi Hansgrohen sadesuihkua, tyylikäs suihkuseinä ja vesikiertoinen lattialämmitys, joka takaa miellyttävän käyttökokemuksen ympäri vuoden. Laattalattia ja kaakeloidut seinäpinnat huokuvat kestävyyttä ja helppohoitoisuutta, kun taas Villeroyn laadukas pesuallas viimeistelee kokonaisuuden. Tämä saunaosasto tarjoaa täydelliset puitteet arjen irtiottoihin, rentoutumiseen ja yhdessäoloon – modernia mukavuutta ilman kompromisseja. Yläkerran kylpyhuone on suunniteltu yhdistämään arjen toiminnallisuus ja ripaus spa-tunnelmaa. Tilasta löytyy moderni sadesuihku ja tyylikäs suihkuseinä. Käytännöllisyyttä lisäävät wc-istuin bidee-suihkulla sekä tilava allaskaapisto, jonka päällä kaksi Villeroyn pesuallasta ja Hansgrohen laadukkaat hanat tuovat arkeen ripauksen luksusta. Valopeili viimeistelee kokonaisuuden ja tekee tilasta valoisamman. Lattia on kestävää laattaa, seinät kaakelia, ja vesikiertoinen lattialämmitys takaa mukavuuden jokaisena vuodenaikana.
  • Saunan kuvaus Tämän kodin sauna tarjoaa viimeistellyn yhdistelmän laatua ja rauhoittavaa tunnelmaa. Ikkunallinen tila tuo luonnonvalon ja maisemat osaksi löylyhetkeä, ja Tulikiven pyöreä sähkökiuas takaa pehmeät ja miellyttävät löylyt. Lauteet on valmistettu lämpökäsitellystä haavasta, joka tuo sekä kestävyyttä että luonnollisen sävyn saunan sisustukseen. Seinät ovat kaunista puuta ja lattia tyylikästä laattaa, mikä viimeistelee modernin ja helppohoitoisen kokonaisuuden.
  • Makuuhuoneen kuvaus Talossa on kolme makuuhuonetta. Päämakuuhuoneen yhteydessä on vaate -ja pukeutumishuone, jossa laadukkaat säilytysratkaisut. Tästä makuuhuoneesta on kulku 10 m2 lasitetulle parvekkeelle. Kahdessa muussa makuuhuoneessa kaapistot. Ikkunoissa pimennysverhot 4 kpl kauko-ohjaimella. Väliovet on tukevat ja karmitiivisteillä äänieristetyt. Lattiat: Tammilankkuparkettia. Seinät: Hirsi / maali.
  • Makuuhuoneiden määrä 3
  • Parveke lasitettu
  • Parvekkeen suunta etelä
  • WC-tilojen kuvaus Alakerran erillinen wc on viimeistelty laadukkailla materiaaleilla ja ajattomalla designilla. Villeroyn pesuallas, Hansgrohen hanat sekä tyylikäs allaskaapisto luovat yhtenäisen ja elegantin ilmeen, jota peili täydentää. Käytännöllisyyttä lisää vesikiertoinen lattialämmitys, joka tuo mukavuutta arjen käyttöön ympäri vuoden. Tilassa on kaunis laattalattia ja kaakeloidut seinäpinnat, jotka yhdistävät kestävyyden ja helppohoitoisuuden.

Tontti

  • Koko 3 784 m²
  • Omistus Oma
  • Kaavoitustilanne Asemakaava
  • Kaavoitustiedot Helsingin kaupunki, 09 310 2611
  • Ranta ranta, yhteisranta

Taloyhtiö

  • Nimi Bostads Ab Björntopp
  • Isännöitsijän tiedot Rene Krijer, krijergroup@gmail.com, 040 838 9143
  • Huolto Kaupunki auraa lumet tontille (postilaatikoille asti). Taloyhtiöllä on lumilinko, jolla osakkaat hoitavat yhtiön alueen.
  • Tehdyt remontit Eteisen ikkunan tiivistys 2024.
  • Taloyhtiön autopaikat Autokatospaikkoja: 6, Autotalleja: 1, Piha-autopaikkoja: 2
  • Huoneistojen lukumäärä 3
  • Taloyhtiössä muuta Kiinteistöön kuuluu osakkeita Karhusaarenkiinteistöt Oy:stä, mikä antaa oikeuden omalle ranta-alueelle, tenniskentälle ja venepaikalle. Talon lisätiedot. Kalliolle perustettu hirsitalo (Kuusamon Hirsitalot Oy, jossa on tuulettuva alapohja, valupilarit ankkuroitu kallioon, hirsirunko 202x220 mm, alapohja ja välipohja puuta, betoni pintavalu, betoni pintavalu, alapohja ja välipohja puuta. Yläpohja puuta.

Esittely

  • Esittelyaika 16.11. 11:00 - 11:40
  • Esittelijä Varonen Mari
  • p. 0406807752
  • Sähköposti mari@strand.fi
  • yleisesittely
  • Lisätietoja Tervetuloa esittelyyn!

Yrityksen tiedot

  • Yrityksen nimi Strand Properties | Mari Varonen LKV
  • Toimiston nimi Strand Helsinki
  • Osoite Erottajankatu 19, Helsinki