Takaisin kohdelistaukseen

Karhupiha 1 A, Sirkka, Kittilä

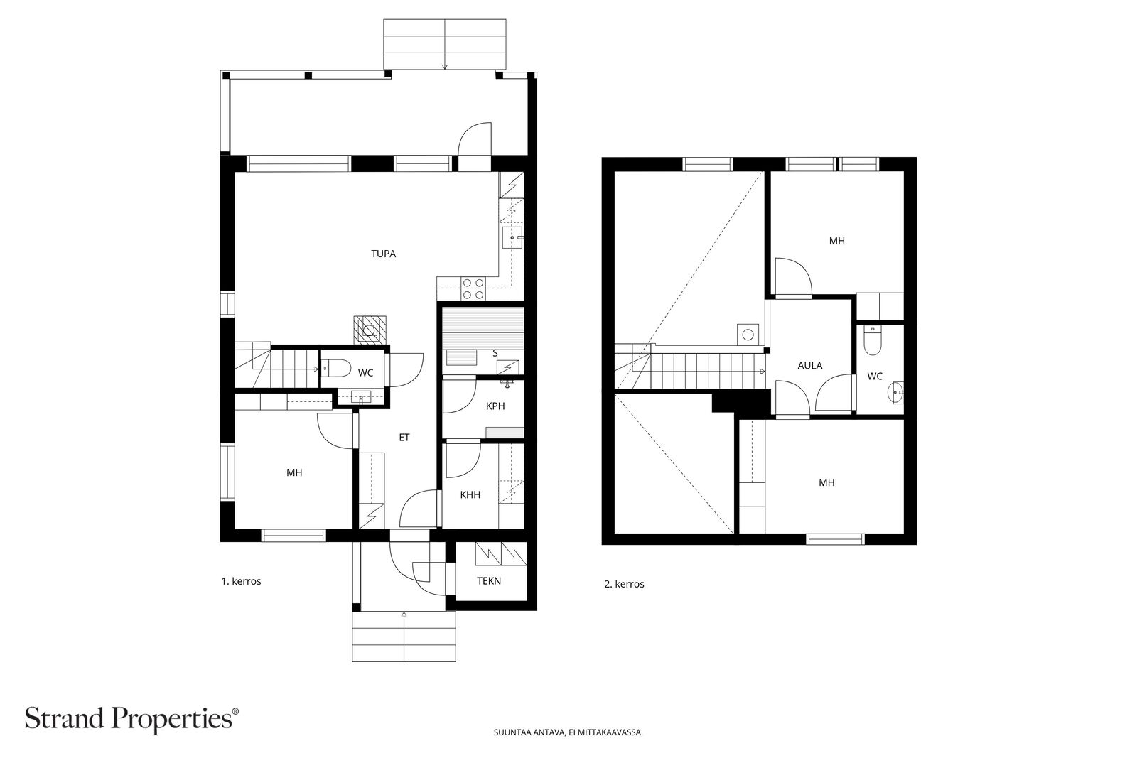
415 000 € • et, tupak., 3 mh, khh, ph, s, 2 x wc, yläaula • 84,80 m² • 2022

Jenni Hällfors jenni@strand.fi +358 40 728 0751 Strand Properties Brand Partner,
Kiinteistönvälittäjä LKV
Jenni Hällfors LKV Oy | 3509535-3

Haluatko lisätietoja?

Ota yhteyttä, tai jätä yhteystietosi.

Jätä yhteydenottopyyntö

Tämä paritalohuoneisto sijaitsee rauhallisella ja arvostetulla Levi Westin alueella, vain lyhyen matkan päässä rinteistä. Vuonna 2022 valmistunut Polar Housen lämpöhirsihuvila yhdistää modernin mukavuuden, energiatehokkuuden ja laadukkaat materiaalit viihtyisäksi kokonaisuudeksi. Levi Westin tuolihissille ja vastikään avautuneeseen Levi West Bistroon on vain muutaman sadan metrin kävelymatka, mikä tekee kohteesta houkuttelevan sekä omaan lomailuun että vuokrattavaksi.

Huoneiston pohjaratkaisu on käytännöllinen ja kutsuva. Ensimmäisessä kerroksessa avara oleskelu- ja keittiötila jonka suurista ikkunoista avautuu maisema idän suuntaan, yksi makuuhuone, kodinhoitohuone, saunaostasto sekä erillinen wc. Yläkerrasta löytyy kaksi makuuhuonetta sekä oma wc, mikä lisää asumis- ja majoitusmukavuutta.

Sisustus on hillitty ja moderni: vaaleat hirsipaneeliseinät, tumma keittiö ja kylpytilojen harmaat kaakelit muodostavat ajattoman tyylikkään kokonaisuuden. Huoneisto myydään täysin kalustettuna ja varusteltuna, joten se on heti valmis käyttöön tai vuokrattavaksi. Kuluvalle talvisesongille on jo valmiiksi hyvin varauskantaa. Lämmitysmuotona toimii energiatehokas vesi–ilmalämpöpumppu, joka pitää asumiskustannukset maltillisina.

Lisätiedot ja yksityisesittelypyynnöt
Jenni Hällfors
Kiinteistönvälittäjä LKV
Strand Properties Brand Partner
040 728 0751 - jenni@strand.fi

Näytä kokonaan

Kohteen perustiedot

  • Kohdenumero 21881365
  • Sijainti Karhupiha 1 A, 91930 Kittilä
  • Omistusmuoto Oma
  • Huoneistoselitelmä et, tupak., 3 mh, khh, ph, s, 2 x wc, yläaula
  • Huoneita 4 h
  • Tyyppi Mökki tai huvila (kiinteistö)
  • Asuintilojen pinta-ala 84,80 m²
  • Pinta-alojen lisätiedot Ilmoitettu asuintilojen pinta-ala pohjautuu rakennuspiirustusten mukaiseen huoneistoalaan. 1. krs. 55,4 m2 2. krs. 29,4 m2
  • Kerroksia 2
  • Vapautuminen heti
  • Kohteen kunto Hyvä
  • Energialuokka Kohteelle ei lain mukaan tarvita energiatodistusta.
  • Rakennusvuosi 2022
  • Käyttöönottovuosi 2022

Hinta ja kustannukset

  • Velaton hinta 415 000 €
  • Myyntihinta 415 000 €
  • Velkaosuus -
  • Vuokrattu Ei
  • Kiinteistövero 925,20

Asuinkustannukset

  • Vesi- ja jätevesimaksu 50 € / kk
  • Muut maksut -Sähkön kulutus nykyisellä käytöllä 12.000 kWh/vuosi, hinta-arvio 0,1 euroa/kWh mukaan 1200 euroa/vuosi -Pihan auraus 300 euroa/vuosi -Jätemaksut noin 500 euroa/vuosi, riippuen tyhjennuysvälistä -Vainsiirtovero 3% -Sähköisen kiinteistökaupan asiontimaksun 236€ maksaa ostaja (sisältää lainhuudon) -Sähköisten panttikirjojen siirtokustannuksesta vastaa ostaja

Lisätiedot

  • Pihan kuvaus -Piha luonnontilassa tai kuntattu -Parkkialue sorattu
  • Lämmitysmuodot ilmavesilämpöpumppu
  • Oma sauna Kyllä
  • Sähköliittymä siirtyy Kyllä
  • Kohde on talviasuttava Kyllä
  • Palvelut -Ruokakauppa K-ruoka Poron Portti 1,8 km
  • Muut palvelut -Levi Ski Resort West Slopes 150 m -Hiihtolatu 1,4 km
  • Liikenneyhteydet -Ski Bus 100 m -Kittilä Airport 12 km
  • Tie perille Kyllä

Tilat, materiaalit ja varustelu

  • Viemäri kunnan
  • Muu varustelu kaapistot, sälekaihtimet/rullaverhot, kiinteät valaisimet, lämminvesivaraaja, jätesäiliö, pyykinpesukone, kuivauskaappi/-rumpu
  • Tulisija takka
  • Vesihuolto kunnan
  • Lisätietoja vesijohdosta Levin Vesihuolto Oy
  • Lattiamateriaali Kosteissa tiloissa, eteisessä sekä tupakeittiössä laattalattia. Makuuhuoneissa sekä yläkerrassa laminaatti.
  • Seinämateriaali Seinät kauttaaltaan valkolakattua hirsipaneelia
  • Kattomateriaali Paneeli
  • Kate Huopakate
  • Käytetyt rakennusmateriaalit puu, betoni
  • Keittiön varustelu -kaapistot musta matta -integroidut kodinkoneet
  • Keittiön pöydät laminaatti
  • Keittiön muu varustelu mikroaaltouuni, astianpesukone, varattu paikka astianpesukoneelle, kiinteät valaisimet, liesituuletin / hormi
  • Liesi integroitu, induktio, erillisuuni
  • Jääkaappi ja pakastin jääkaappi/pakastin
  • Keittiön lattia laatta
  • Keittiön seinät puu
  • Kylpyhuoneen varustelu suihku, kiinteät valaisimet
  • Kylpyhuoneen lattia laatta
  • Kylpyhuoneen seinät kaakeli
  • Kiuas sähkökiuas
  • Saunan lattia laatta
  • Saunan seinät puu
  • Makuuhuoneiden määrä 3
  • Makuuhuoneen lattia laminaatti
  • Makuuhuoneen seinät puu
  • Olohuoneen lattia laatta
  • Olohuoneen seinät puu
  • Pesutilojen lattia laatta
  • Pesutilojen seinät puu
  • WC-tilojen kuvaus Erilliset wc:t molemmissa kerroksissa
  • WC-tilojen varustelu lattialämmitys, bidee-suihku
  • WC-tilojen lattia laatta
  • WC-tilojen seinät puu

Tontti

  • Lisätietoja rakennusoikeudesta Rakennusoikeus vapaa-ajanrakennukselle 180 m2, joka on käytetty kokonaisuudessaan. Lisäksi talousrakennukselle rakennusoikeutta 30 m2 (josta 15 m2 kohdistuu nyt myytävää määräosaan), joka on kokonaisuudessaan käyttämättä
  • Tontin nimi 955
  • Koko 1 350 m²
  • Omistus Oma
  • Kaavoitustilanne Asemakaava
  • Kiinteistötunnus 261-409-18-65
  • Ranta ei rantaa

Yrityksen tiedot

  • Yrityksen nimi Strand Properties | Jenni Hällfors LKV Oy
  • Toimiston nimi Strand Lappi
  • Osoite Erottajankatu 19, Helsinki