Löydä oma rauhasi ja nauti luonnonläheisestä elämästä tässä upeassa huvila-helmesä Luopioisissa.
Tämä vuonna 2008 valmistunut tyylikäs huvila tarjoaa tilaa ja mukavuutta niin arkeen kuin juhlaankin. Rakennuksessa on käytetty laadukkaita materiaaleja, ja sen lämpöä varaava takka sekä energiatehokas maalämpöjärjestelmä varmistavat miellyttävän asumisen ympäri vuoden.
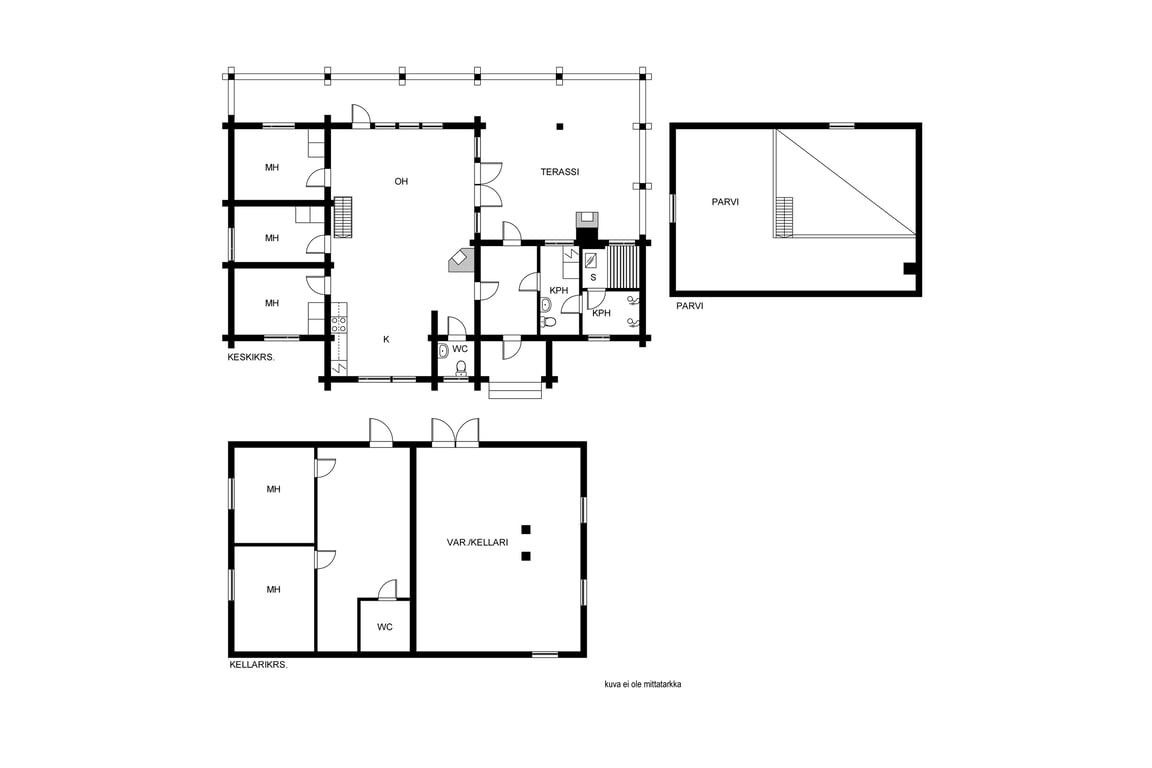
Huvilan sydän on avara ja valoa tulviva olohuone, jonka korkeat huoneet ja suuret ikkunat luovat avaruuden ja ilmavuuden tunteen. Moderni keittiö, jossa on tilava saareke, kutsuu koko perheen yhteisiin ruoanlaittohetkiin ja arjen ilonhetkiin. Huvilassa on yhteensä viisi tilavaa makuuhuonetta, joten tilaa riittää isommallekin perheelle tai vieraille. Erityisesti parvi tarjoaa monipuolisia käyttömahdollisuuksia ja lisää tätä tilan tuntua.
Rentoutumiseen on panostettu kunnolla – nauti löylyistä niin sisä- kuin rantasaunassa, joista jälkimmäinen sijaitsee aivan oman rannan tuntumassa. Lasitettu terassi lämmittimineen mahdollistaa maisemien ihailemisen ja rentoutumisen myös viileämpinä iltoina.
Tontilla, joka on peräti 6450 m², on riittävästi tilaa ulkoiluun, pihapeleihin ja muille vapaa-ajan aktiviteeteille. Lämmin autotalli ja valokuituyhteys varmistavat, että etätyötkin sujuvat ongelmitta luonnon helmassa.
Tämä kaunis huvila Luopioisissa on täydellinen valinta, jos arvostat rauhaa, laatua ja luonnonläheistä elämäntapaa. Älä jää paitsi tästä ainutlaatuisesta tilaisuudesta – varaa esittely jo tänään!
Tuukka Hakkarainen
Ylempi Kiinteistönvälittäjä, YKV LKV
Strand Properties Brand Partner
040 174 3010 – tuukka.hakkarainen@strand.fi