Takaisin kohdelistaukseen

Tohkalantie 4, Viiala, Akaa

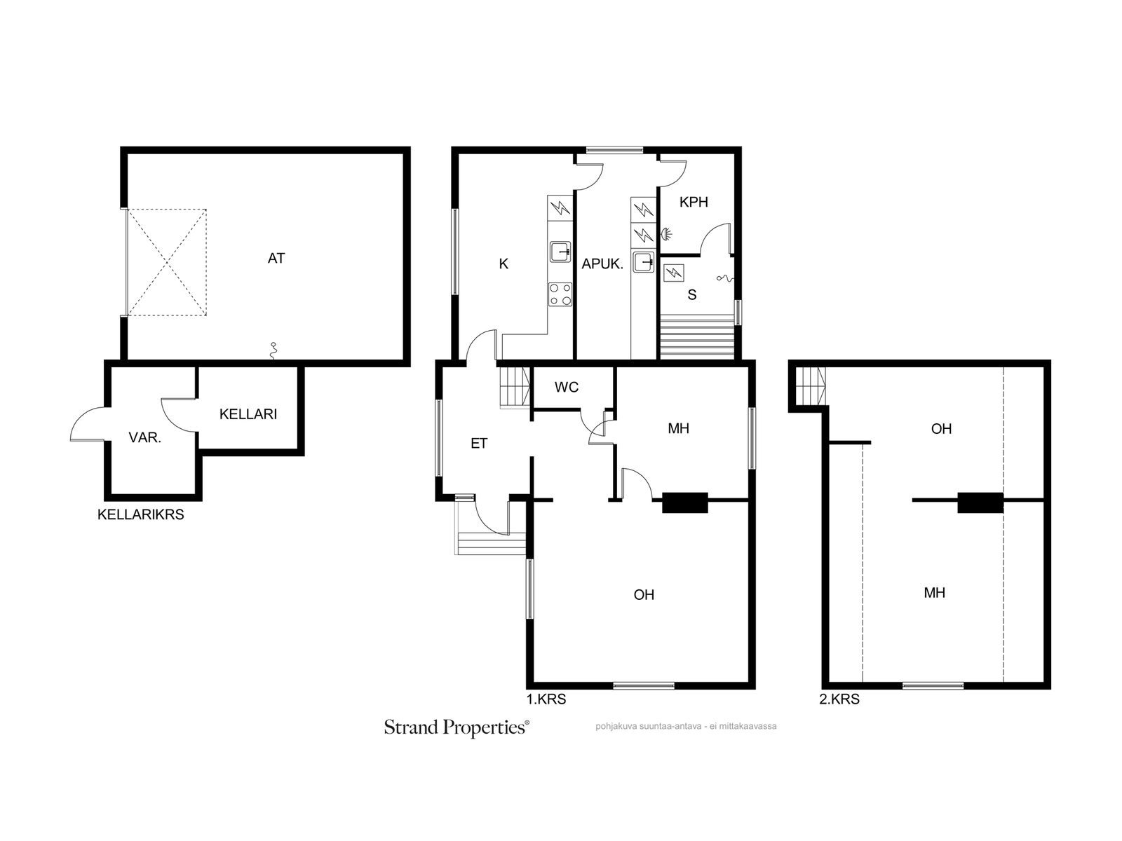
129 000 € • 2-3h,k,ph,s • 90 m² / 120 m² • 1954

Tuukka Hakkarainen tuukka.hakkarainen@strand.fi +358 40 174 3010 Strand Properties Brand Partner,
Kiinteistönvälittäjä LKV, YKV
Tuukka Hakkarainen LKV | 3324650-9

Haluatko lisätietoja?

Ota yhteyttä, tai jätä yhteystietosi.

Jätä yhteydenottopyyntö

Tervetuloa rauhalliseen ympäristöön, jossa oma piha ja luonnonläheisyys luovat puitteet viihtyisälle asumiselle. Tämä kodikas omakotitalo tarjoaa toimivan pohjaratkaisun sekä mahdollisuuden muokata kodista juuri omiin tarpeisiin sopivan.

Kodin tilat jakautuvat kahteen kerrokseen, ja kokonaisuus käsittää olohuoneen, 2–3 makuuhuonetta, keittiön sekä saunaosaston. Olohuoneen varaava takka tuo lämpöä ja tunnelmaa, ja tilat soveltuvat hyvin niin vakituiseen asumiseen kuin vapaa-ajan käyttöön.

Keittiö on varusteltu arjen tarpeisiin, ja pesutiloista löytyy oma sauna. Kokonaisuus on siisti, mutta jättää uudelle omistajalle mahdollisuuden päivittää pintoja ja ratkaisuja oman maun mukaan.

Taloa on vuosien varrella huollettu ja kunnostettu – muun muassa katto on uusittu, keittiötä päivitetty sekä julkisivua parannettu. Kuntotutkimus on tehty, mikä antaa hyvän lähtökohdan jatkosuunnittelulle.

Pihapiiri on tämän kohteen ehdoton valtti. Reilun kokoinen, noin 1 580 m² oma tontti tarjoaa runsaasti tilaa puutarhanhoitoon, oleskeluun ja vapaa-ajan viettoon. Pihalta löytyy myös autotalli sekä ulkorakennus, joka on purkukuntoinen mutta mahdollistaa uuden rakentamisen tai lisätilan suunnittelun.

Tämä kohde sopii erinomaisesti sinulle, joka etsit edullista omakotitaloa omalla tontilla ja näet potentiaalin kehittää kokonaisuutta omien toiveidesi mukaisesti.

Kysy lisätietoja välittäjältä.

Tuukka Hakkarainen
Ylempi Kiinteistönvälittäjä, YKV LKV
Strand Properties Brand Partner
040 174 3010 – tuukka.hakkarainen@strand.fi

Näytä kokonaan

Kohteen perustiedot

  • Kohdenumero 21356342
  • Sijainti Tohkalantie 4, 37830 Akaa
  • Huoneistoselitelmä 2-3h,k,ph,s
  • Huoneita 4 h
  • Tyyppi Omakotitalo (kiinteistö)
  • Asuintilojen pinta-ala 90 m²
  • Kerroksia 2
  • Vapautuminen sopimuksen mukaan
  • Kohteen kunto Tyydyttävä
  • Energialuokka E2013.
  • Rakennusvuosi 1954
  • Käyttöönottovuosi 1954

Hinta ja kustannukset

  • Velaton hinta 129 000 €
  • Myyntihinta 129 000 €
  • Velkaosuus -
  • Vuokrattu Ei
  • Kiinteistövero 239 € / vuosi
  • Tiemaksu 129 € / vuosi

Lisätiedot

  • Oma sauna Kyllä
  • Sähköliittymä siirtyy Kyllä
  • Kuntotarkistus tehty Kyllä
  • Tehdyt remontit Ilmanvaihtojärjestelmän asentaminen 2023 Aurinkopanelien ja akun asentaminen 2024 Katto uusittu 2012 Keittiö 2011 Ilmalämpöpumppu 2008 Julkisivu (ulkovuoraus) 2005 Vesijohdot 1989 Peruskorjaus 1989
  • Tie perille Kyllä

Tilat, materiaalit ja varustelu

  • Viemäri umpisäiliö
  • Säilytystilojen kuvaus Autotalli
  • Tulisija muu
  • Vesihuolto kunnan
  • Kate Peltikate
  • Katon kunto uusittu 2012
  • Käytetyt rakennusmateriaalit puu
  • Keittiön varustelu Varusteet: jääkaappi/pakastin, liesi, liesituuletin, astianpesukone. Lattia: laminaatti Seinä: maali ja tapetti.
  • Kylpyhuoneen kuvaus Varusteet: Suihku
  • Kylpyhuoneen lattia laatta
  • Kylpyhuoneen seinät kaakeli
  • Saunan kuvaus Lattiamateriaali: laatta. Seinämateriaali: paneeli
  • Kiuas sähkökiuas
  • Makuuhuoneen kuvaus Lukumäärä:2 Lattiamateriaali: laminaatti Seinämateriaali: maali ja tapetti.
  • WC-tilojen kuvaus Lattia: laminaatti Seinä: maali Varusteet: wc-istuin.

Tontti

  • Koko 1 580 m²
  • Omistus Oma
  • Kaavoitustilanne Kaavoittamaton
  • Kiinteistötunnus 20-422-1-78
  • Rakennukset Ulkorakennus (purkukuntoinen)

Yrityksen tiedot

  • Yrityksen nimi Strand Properties | Tuukka Hakkarainen LKV
  • Toimiston nimi Strand Tampere
  • Osoite Kelloportinkatu 1 a, Tampere