Takaisin kohdelistaukseen

Heinäkuja 6, Varisto, Vantaa

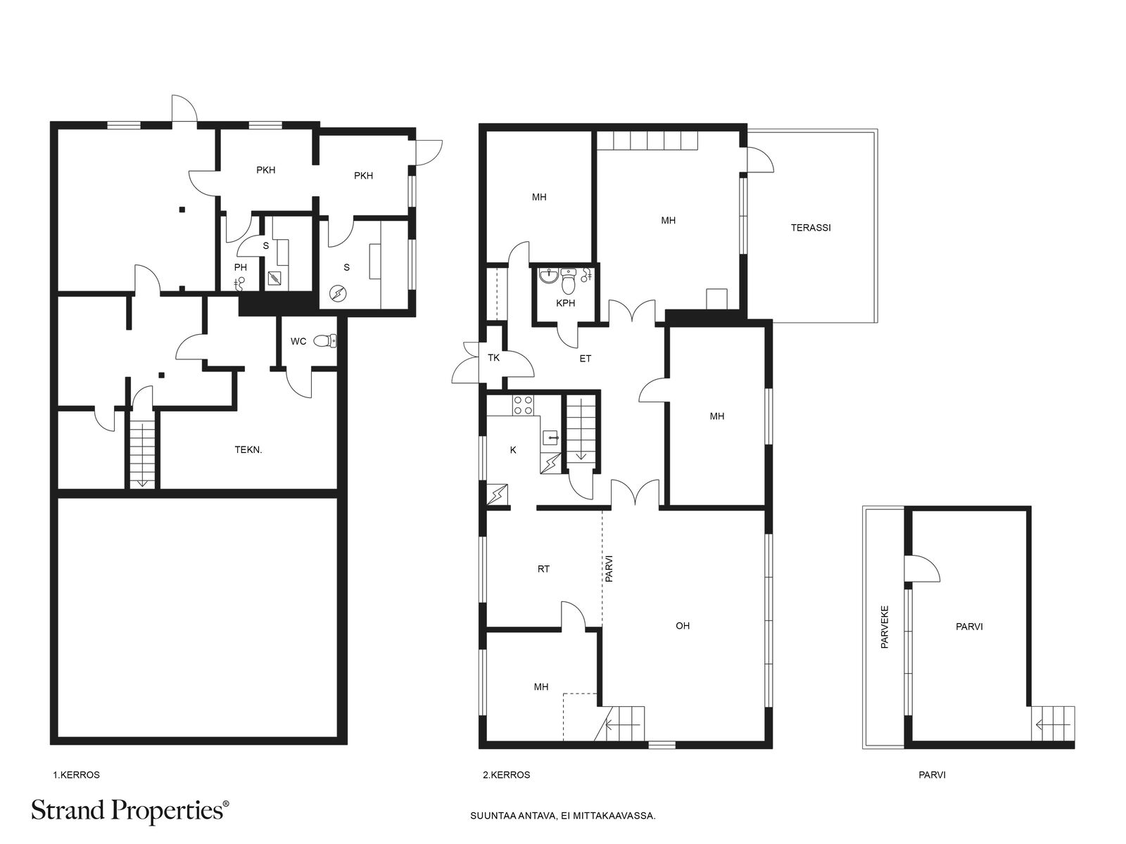
298 000 € • 5h, k, kph, parvi, 2x kph, saunat, tekn./var.tilaa, verstas/halli, ak • 130 m² / 252 m² • 1957

Tuula Piiroinen tuula@strand.fi +358 40 680 7716 Strand Properties Brand Partner,
Kiinteistönvälittäjä LKV
Tuula Piiroinen LKV Oy | 3463551-4

Haluatko lisätietoja?

Ota yhteyttä, tai jätä yhteystietosi.

Jätä yhteydenottopyyntö

Loistava tilaisuus yrittäjälle, joka tarvitsee oman työpajan, työtilan tai varastotilan

Kohde on Asunto Oy -muotoinen, ja myynnissä on koko yhtiön osakekanta. Omakotitalo ja halli/verstas ovat eri osakesarjoilla, ja myynti tapahtuu yhtenä kokonaisuutena. Varainsiirtovero on 1,5 %. Hallissa/verstaassa 69,5 m² on ilmalämpöpumppu ja kamiina.

"Timantti kaipaa hiomista"...
Remonttia vaativa talo luo monille mahdollisuuksia. Kuntotarkastuksen voi tarvittaessa päivittää, on tehty 12.2024, saatavilla välittäjältä.

Talo on alun perin valmistunut vuonna 1957 ja sitä on laajennettu 1970-luvulla. Halli/verstas on valmistunut vuonna 2010. Lisäksi pihapiirissä on erillinen autokatos.

Talo on persoonallinen ja sisätiloissa on lämmin tunnelma. Olohuoneessa on korkeaa tilaa, näkymät rinteestä alas, kalanruotoparketti sekä parvitila, jonka portaikossa ovat puiset vanhan kuunarin kaiteet. Neljä makuuhuonetta, joista yhdestä on kulku parvekkeelle. Lisäksi kylpyhuone/wc, joka on remontoitu 2012. Ikean valkoinen keittiö on remontoitu 2015.
Sähkösauna ja hirsirakenteinen puusauna Aito-kiukaalla.

Lähellä sijaitseva Hämeenkylän koulu tarjoaa opetusta 1.-9.-luokkalaisille. Varistossa on hyvät ulkoilumahdollisuudet, kuten Petikon maastot ja Variston tennishalli lähellä.

Esittelyt ja lisätiedot;
Tuula Piiroinen
Kiinteistönvälittäjä LKV
Strand Properties Brand Partner
040 680 7716 - tuula@strand.fi
Tuula Piiroinen LKV Oy | 3463551-4

Näytä kokonaan

Kohteen perustiedot

  • Kohdenumero 20562454
  • Sijainti Heinäkuja 6, 01660 Vantaa
  • Huoneistoselitelmä 5h, k, kph, parvi, 2x kph, saunat, tekn./var.tilaa, verstas/halli, ak
  • Huoneita 5 h
  • Tyyppi Omakotitalo (kiinteistö)
  • Asuintilojen pinta-ala 130 m²
  • Pinta-alojen lisätiedot Talon kerrosala 130 m2, talousrakennus (halli/verstas) kerrosala 69,5 m2.
  • Kerroksia 2
  • Vapautuminen 1kk/ sop.mukaan
  • Kunto Asuintilat tyydyttävässä/hyvässä kunnossa. Kunto muutoin välttävä. Tarkastuksen yhteenvetona voidaan todeta, että talossa on lähinnä ikääntymisen takia kohtuullisen paljon remonttitarpeita (kts. kuntotarkastus).
  • Kohteen kunto Välttävä
  • Energialuokka Ei lain edellyttämää energiatodistusta
  • Asbestikartoitus Kyllä
  • Rakennusvuosi 1957
  • Käyttöönottovuosi 1957

Hinta ja kustannukset

  • Velaton hinta 298 000 €
  • Myyntihinta 298 000 €
  • Velkaosuus -
  • Vuokrattu Ei
  • Kiinteistövero 969,22

Asuinkustannukset

  • Muut maksut Lämmönkulutus n. 3 700,00 €/vuosi, eli 308,30 €/kk (kaukolämpö). Käyttösähkö n. 3 067 kWh/vuosi.

Lisätiedot

  • Lämmitysmuodot kaukolämpö
  • Oma sauna Kyllä
  • Sähköliittymä siirtyy Kyllä
  • Antennijärjestelmä Antenni
  • Kuntotarkistus tehty Kyllä
  • Tehdyt remontit Kellarin tupa tehty, eli ulkopuolen hirsirakennus. Laajennusosan yläkolmioon lisätty 100mm villaa 1989.  Sisääntulon terassi ja kate tehty n. 1990-2000. Vesisänky vuotanut, korjattu 2003. Alakerran seinien, lattioiden maalaus 2009. Osin salaojitusta tehty alarinteen puolelle 2010.  Lämmityspattereita ja nousuja uusittu 2012. Osin ikkunoita vaihdettu 2012. Makuuhuoneessa takka poistettu, kamiina tilalle, seiniä käsitelty 2012. Pukeutumishuone remontoitu, lattiaa lähinnä 2013. Yläkerran wc remontoitu kokonaan 2013. Parvekkeen valokate ja kaiteet 2015. Wc:n viemäriputket kellaritilaan asti 2015. WC:n, keittiön tulovesiputket runkolinjaan asti 2015. Alakerran wc: maalaus 2018 Puulämmitteisen saunan entisöinti 2006 sekä saunan tupaa kunnostettu 2020. Sähkösaunaa ja pesuhuonetta kunnostettu 2022. Uppopumpun uusiminen (kellarissa on uppopumppu ja kaivoi kalliota pitkin tulevalle vedelle, remonttien yhteydessä osin tehty uusimista ja laajennusta) 2024.
  • Päiväkoti Varistonniityn päiväkoti, Luhtitupa, Daghemmet Kanel, Vapaalan päiväkoti, alueella useita.
  • Koulu Hämeenkylän koulu tarjoaa opetusta 1.-9.-luokkalaisille.(Varistontie 3).
  • Palvelut K-Supermarket Hämeenkylä + Alko, Alepa Pähkinärinne, Petikon ja Variston liikkeet.
  • Liikenneyhteydet Bussit.
  • Tie perille Kyllä

Tilat, materiaalit ja varustelu

  • Viemäri kunnan
  • Säilytystilojen kuvaus Vaatekaapistot, komerot ja halli/verstas.
  • Vesihuolto kunnan
  • Kate Mineriitti, alkuper. osalla on peltikatto alla
  • Rakennus- ja pintamateriaalien kuvaus Siporex harkot runkona, laajennuksen kattokolmio puuta ja villaa. Julkisivu rapattu, osin puuta Väliseinät puuta, vanha ulkoseinä siporex, kellarissa muurattuja. Välipohja betonia kantava osa ja yläpuolen eristeenä purua ja puurakenteet. Laajennusosan parven lattia on puurakenteinen.
  • Käytetyt rakennusmateriaalit puu
  • Muut rakennusmateriaalit siporex
  • Keittiön varustelu Ikean keittiössä valkoiset kaapistot, jääkaappi, kiertoilmauuni, astianpesukone, induktioliesi, mikroaaltouuni ja liesikupu. Parkettilattia.
  • Kylpyhuoneen kuvaus Yläkerran: kylpyhuone/wc, suihkukaappi, pesuallas, valopeili, wc-istuin ja lattialämmitys. Remontoitu 2013. Saunaosastolla kylpyhuoneessa laattalattia, seinät kaakeloitu, katto paneloitu, lisäksi suihku. Kaakelit on maalattu.
  • Saunan kuvaus Kaksi saunaa. Sähkökiukaalla varustettu sauna. Laattalattia, seinät ja katto puupaneeli, lisäksi lauteet. Puusaunassa lauteet, hirsi/ kaakeliseinät, puulämmitteinen kiuas ja ikkuna.
  • Makuuhuoneen kuvaus Neljä makuuhuonetta, joista kahdessa on parkettilattia ja kahdessa laminaatti. Yhdessä makuuhuoneessa kamiina.
  • WC-tilojen kuvaus Alakerran erillinen wc, laattalattia, seinät kaakeloitu, katto paneloitu, pesuallas, peili, bidee-suihku ja wc-istuin.

Tontti

  • Rakennusoikeus e-luku 0.25
  • Koko 1 061 m²
  • Omistus Oma
  • Kaavoitustilanne Asemakaava
  • Kiinteistötunnus 92-14-15-2

Taloyhtiö

  • Kuntotutkimuksista Insinööritoimisto Capri Oy 12.12.2024

Yrityksen tiedot

  • Yrityksen nimi Strand Properties | Tuula Piiroinen LKV Oy
  • Toimiston nimi Strand Helsinki
  • Osoite Erottajankatu 19, Helsinki